Elected Officials
Courts
Departments
Initiatives
Open Government
About
Login / Register
Home
/
Property & Tax Records
/
Property Records
/
Property & Tax Search
/
Parcel Profile
/
Print View
Search for Another Parcel
Parcel Profile
Historical Card
Sketches
Photos
Tax Map
Taxes
Print View
Print This Page
Address: 2638 DAVISON RD
Parcel: 27036126003101
Parcel Profile
Address
2638 | DAVISON | RD
Street Status
PAVED
School District
HARBOR CREEK
Acreage
1.4600
Classification
R
Land Use Code
SINGLE FAMILY
Legal Description
2638 DAVISON RD 1.464 AC
Square Feet
1460
Topo
LEVEL
Utility
GAS | WELL | SEPTIC
Zoning
Please contact your municipal zoning officer
Deed Book
2019
Deed Page
020303
2026 Tax Values
Land Value / Taxable
42,100 / 42,100.00
Building Value / Taxable
44,400 / 44,400.00
Total Value / Taxable
86,500 / 86,500.00
Clean & Green
Inactive
Homestead Status
Active
Farmstead Status
Inactive
Lerta Amount
0
Lerta Expiration Year
0
Residential Data
Card 1
Style
OLD STYLE
Basement
FULL
Year Built
1895
Exterior Wall
COMPOSITION
Total Living Area
1460
Full Baths
1
Half Baths
2
Fuel Type
GAS
Heating
CENTRAL
Heating System
FORCED AIR
Stories
1.5
Total Bedrooms
4
Total Family Rooms
0
Total Rooms
6
Fireplaces
0
Other Buildings & Yards
Description
Built
Width
Length
Area
FRAME UTILITY SHED
1987
10
12
120
FRAME UTILITY SHED
2024
16
20
320
CANOPY
2024
3
20
60
FRAME UTILITY SHED
2009
8
8
64
Sales History
Sale Date
Type
Price
Book / Page
Other Info
10/4/2019
LAND & BUILDING
0
2019 / 020303
SPECIAL WARRANTY DEED
2/9/1987
0
1668 / 0183
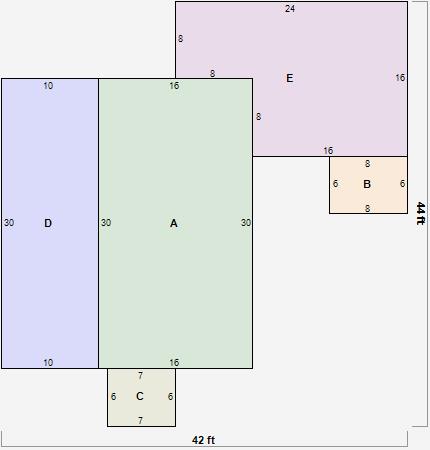
Parcel Sketches
Residential Card 1
A
MAIN
480 square feet
B
MA STOOP/TERR MAS STOOP
48 square feet
C
OFP OPEN FRAME PORCH
42 square feet
D
UNFIN BSMT BASEMENT UNFINISHED 1S FR ONE STORY FRAME
300 square feet
E
1S FR ONE STORY FRAME
320 square feet
Parcel Images
Please note:
this tab is for informational purposes only and may not show all delinquencies, see the Taxes tab for more accurate delinquent taxes due.