Elected Officials
Courts
Departments
Initiatives
Open Government
About
Login / Register
Home
/
Property & Tax Records
/
Property Records
/
Property & Tax Search
/
Parcel Profile
/
Print View
Search for Another Parcel
Parcel Profile
Historical Card
Sketches
Photos
Tax Map
Taxes
Print View
Print This Page
Address: 6904 BELLE RD
Parcel: 27036126004900
Parcel Profile
Address
6904 | BELLE | RD
Street Status
PAVED
School District
HARBOR CREEK
Acreage
3.2700
Classification
R
Land Use Code
SINGLE FAMILY
Legal Description
6904 BELLE RD 3.27 AC
Square Feet
1928
Topo
LEVEL
Utility
PUBLIC WATER | GAS | SEPTIC
Zoning
Please contact your municipal zoning officer
Deed Book
0005
Deed Page
1293
2026 Tax Values
Land Value / Taxable
49,400 / 49,400.00
Building Value / Taxable
104,630 / 104,630.00
Total Value / Taxable
154,030 / 154,030.00
Clean & Green
Inactive
Homestead Status
Active
Farmstead Status
Inactive
Lerta Amount
0
Lerta Expiration Year
0
Residential Data
Card 1
Style
OLD STYLE
Basement
CRAWL
Year Built
1880
Exterior Wall
ALUMINUM/VINYL
Total Living Area
1928
Full Baths
1
Half Baths
0
Fuel Type
GAS
Heating
CENTRAL
Heating System
FORCED AIR
Stories
2.0
Total Bedrooms
3
Total Family Rooms
0
Total Rooms
7
Fireplaces
0
Other Buildings & Yards
Description
Built
Width
Length
Area
FRAME OR CB DETACHED GARAGE
1962
20
22
440
Sales History
Sale Date
Type
Price
Book / Page
Other Info
4/13/1987
0
0005 / 1293
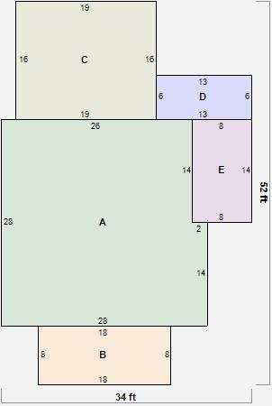
Parcel Sketches
Residential Card 1
A
MAIN
756 square feet
B
OFP OPEN FRAME PORCH
144 square feet
C
1S FR ONE STORY FRAME
304 square feet
D
EFP ENCL FRAME PORCH
78 square feet
E
1S FR ONE STORY FRAME
112 square feet
Parcel Images
Please note:
this tab is for informational purposes only and may not show all delinquencies, see the Taxes tab for more accurate delinquent taxes due.