Elected Officials
Courts
Departments
Initiatives
Open Government
About
Login / Register
Home
/
Property & Tax Records
/
Property Records
/
Property & Tax Search
/
Parcel Profile
/
Print View
Search for Another Parcel
Parcel Profile
Historical Card
Sketches
Photos
Tax Map
Taxes
Print View
Print This Page
Address: 2390 2392 DEPOT RD
Parcel: 27036204002103
Parcel Profile
Address
2390 | 2392 | DEPOT | RD
Street Status
PAVED
School District
HARBOR CREEK
Acreage
1.0960
Classification
R
Land Use Code
SINGLE FAMILY
Legal Description
2390 92 DEPOT RD LOT 3 & N. PT 4 237.77 X 200 | REF MB 15-95
Square Feet
4708
Topo
LEVEL
Utility
PUBLIC WATER | GAS
Zoning
Please contact your municipal zoning officer
Deed Book
1652
Deed Page
0410
2026 Tax Values
Land Value / Taxable
40,600 / 40,600.00
Building Value / Taxable
239,400 / 239,400.00
Total Value / Taxable
280,000 / 280,000.00
Clean & Green
Inactive
Homestead Status
Active
Farmstead Status
Inactive
Lerta Amount
0
Lerta Expiration Year
0
Residential Data
Card 1
Style
OLD STYLE
Basement
FULL
Year Built
1880
Exterior Wall
BRICK
Total Living Area
4708
Full Baths
3
Half Baths
0
Fuel Type
GAS
Heating
CENTRAL
Heating System
FORCED AIR
Stories
2.0
Total Bedrooms
4
Total Family Rooms
1
Total Rooms
10
Fireplaces
3
Other Buildings & Yards
Description
Built
Width
Length
Area
1S FRAME OR METAL POULTRY HSE
1986
14
26
364
FRAME OR CB DETACHED GARAGE
1992
0
0
2618
FRAME OR CB DETACHED GARAGE
1995
14
20
280
Sales History
Sale Date
Type
Price
Book / Page
Other Info
10/8/1986
0
1652 / 0410
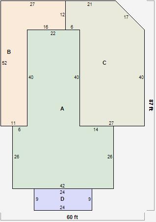
Parcel Sketches
Residential Card 1
A
MAIN
1972 square feet
B
1S FR ONE STORY FRAME
764 square feet
C
MA_PT CONC/MAS PATIO
1404 square feet
D
OFP OPEN FRAME PORCH
216 square feet
Parcel Images
Please note:
this tab is for informational purposes only and may not show all delinquencies, see the Taxes tab for more accurate delinquent taxes due.