Elected Officials
Courts
Departments
Initiatives
Open Government
About
Login / Register
Home
/
Property & Tax Records
/
Property Records
/
Property & Tax Search
/
Parcel Profile
/
Print View
Search for Another Parcel
Parcel Profile
Historical Card
Sketches
Photos
Tax Map
Taxes
Print View
Print This Page
Address: 2337 SALTSMAN RD
Parcel: 27041137000100
Parcel Profile
Address
2337 | SALTSMAN | RD
Street Status
PAVED
School District
HARBOR CREEK
Acreage
0.5785
Classification
R
Land Use Code
TWO FAMILY
Legal Description
LOT 26 WESLEYVILLE AC
Square Feet
2244
Topo
ABOVE STREET
Utility
ALL PUBLIC
Zoning
Please contact your municipal zoning officer
Deed Book
1000
Deed Page
0329
2026 Tax Values
Land Value / Taxable
34,900 / 34,900.00
Building Value / Taxable
67,500 / 67,500.00
Total Value / Taxable
102,400 / 102,400.00
Clean & Green
Inactive
Homestead Status
Inactive
Farmstead Status
Inactive
Lerta Amount
0
Lerta Expiration Year
0
Residential Data
Card 1
Style
OLD STYLE
Basement
PART
Year Built
1870
Exterior Wall
ALUMINUM/VINYL
Total Living Area
2244
Full Baths
2
Half Baths
0
Fuel Type
GAS
Heating
CENTRAL
Heating System
FORCED AIR
Stories
2.0
Total Bedrooms
4
Total Family Rooms
0
Total Rooms
9
Fireplaces
0
Other Buildings & Yards
No OBY Data Found
Sales History
Sale Date
Type
Price
Book / Page
Other Info
4/15/1969
0
1000 / 0329
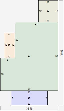
Parcel Sketches
Residential Card 1
A
MAIN
1056 square feet
B
OFP OPEN FRAME PORCH
84 square feet
C
1S FR ONE STORY FRAME
132 square feet
D
OFP OPEN FRAME PORCH
160 square feet
Parcel Images
Please note:
this tab is for informational purposes only and may not show all delinquencies, see the Taxes tab for more accurate delinquent taxes due.