Elected Officials
Courts
Departments
Initiatives
Open Government
About
Login / Register
Home
/
Property & Tax Records
/
Property Records
/
Property & Tax Search
/
Parcel Profile
/
Print View
Search for Another Parcel
Parcel Profile
Historical Card
Sketches
Photos
Tax Map
Taxes
Print View
Print This Page
Address: 2104 CLARK RD
Parcel: 27043136005200
Parcel Profile
Address
2104 | CLARK | RD
Street Status
PAVED
School District
HARBOR CREEK
Acreage
0.4219
Classification
R
Land Use Code
MULTIPLE DWELLINGS
Legal Description
2104 CLARK RD LOT 1 103.03 X 178 | MB 2019-14665
Square Feet
3408
Topo
ABOVE STREET
Utility
ALL PUBLIC
Zoning
Please contact your municipal zoning officer
Deed Book
2021
Deed Page
004436
2025 Tax Values
Land Value / Taxable
29,600 / 29,600.00
Building Value / Taxable
59,200 / 59,200.00
Total Value / Taxable
88,800 / 88,800.00
Clean & Green
Inactive
Homestead Status
Inactive
Farmstead Status
Inactive
Lerta Amount
0
Lerta Expiration Year
0
Residential Data
Card 1
Style
OLD STYLE
Basement
FULL
Year Built
1900
Exterior Wall
FRAME
Total Living Area
1728
Full Baths
2
Half Baths
0
Fuel Type
GAS
Heating
CENTRAL
Heating System
FORCED AIR
Stories
2.0
Total Bedrooms
3
Total Family Rooms
0
Total Rooms
6
Fireplaces
0
Card 2
Style
OTHER
Basement
NONE
Year Built
1900
Exterior Wall
FRAME
Total Living Area
1680
Full Baths
2
Half Baths
0
Fuel Type
GAS
Heating
CENTRAL
Heating System
FORCED AIR
Stories
2.0
Total Bedrooms
4
Total Family Rooms
0
Total Rooms
8
Fireplaces
0
Other Buildings & Yards
No OBY Data Found
Sales History
Sale Date
Type
Price
Book / Page
Other Info
2/25/2021
LAND & BUILDING
0
2021 / 004436
SPECIAL WARRANTY DEED
12/16/2019
LAND & BUILDING
110000
2019 / 025927
SPECIAL WARRANTY DEED
12/19/2001
LAND & BUILDING
0
836 / 131
Parcel Sketches
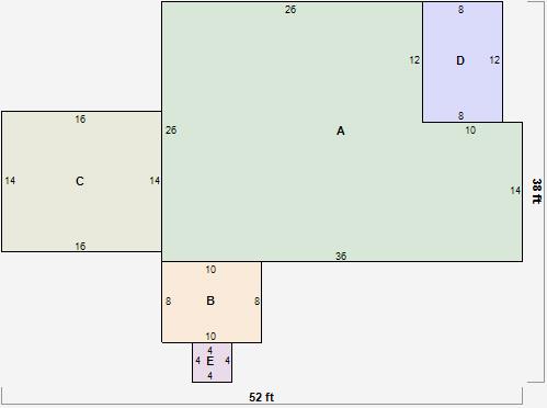
Residential Card 1
A
MAIN
816 square feet
B
EFP ENCL FRAME PORCH
80 square feet
C
WDDCK WOOD DECKS WDDCK WOOD DECKS
224 square feet
D
1S FR ONE STORY FRAME
96 square feet
E
WDDCK WOOD DECKS
16 square feet
Residential Card 2
A
MAIN
840 square feet
B
MA_PT CONC/MAS PATIO
56 square feet
Parcel Images