Elected Officials
Courts
Departments
Initiatives
Open Government
About
Login / Register
Home
/
Property & Tax Records
/
Property Records
/
Property & Tax Search
/
Parcel Profile
/
Print View
Search for Another Parcel
Parcel Profile
Historical Card
Sketches
Photos
Tax Map
Taxes
Print View
Print This Page
Address: 3559 CUMBERLAND RD
Parcel: 27048168000400
Parcel Profile
Address
3559 | CUMBERLAND | RD
Street Status
PAVED
School District
HARBOR CREEK
Acreage
0.2223
Classification
R
Land Use Code
SINGLE FAMILY
Legal Description
3559 CUMBERLAND RD 80 X 121.04
Square Feet
1350
Topo
LEVEL
Utility
ALL PUBLIC
Zoning
Please contact your municipal zoning officer
Deed Book
1158
Deed Page
1671
2025 Tax Values
Land Value / Taxable
30,300 / 30,300.00
Building Value / Taxable
58,800 / 58,800.00
Total Value / Taxable
89,100 / 89,100.00
Clean & Green
Inactive
Homestead Status
Active
Farmstead Status
Inactive
Lerta Amount
0
Lerta Expiration Year
0
Residential Data
Card 1
Style
BUNGALOW
Basement
FULL
Year Built
1930
Exterior Wall
FRAME
Total Living Area
1350
Full Baths
1
Half Baths
0
Fuel Type
GAS
Heating
CENTRAL
Heating System
FORCED AIR
Stories
1.0
Total Bedrooms
3
Total Family Rooms
0
Total Rooms
6
Fireplaces
0
Other Buildings & Yards
No OBY Data Found
Sales History
Sale Date
Type
Price
Book / Page
Other Info
7/28/2004
LAND & BUILDING
51000
1158 / 1671
DEED
3/29/2004
LAND & BUILDING
0
1119 / 0053
SHERIFF'S DED
10/12/2000
LAND & BUILDING
74000
731 / 1900
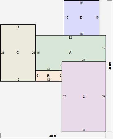
Parcel Sketches
Residential Card 1
A
MAIN
432 square feet
B
OFP OPEN FRAME PORCH
60 square feet
C
FR GR FRAME GARAGE
416 square feet
D
OFP OPEN FRAME PORCH
256 square feet
E
UNFIN BSMT BASEMENT UNFINISHED 1S FR ONE STORY FRAME
640 square feet
Parcel Images