Elected Officials
Courts
Departments
Initiatives
Open Government
About
Login / Register
Home
/
Property & Tax Records
/
Property Records
/
Property & Tax Search
/
Parcel Profile
/
Print View
Search for Another Parcel
Parcel Profile
Historical Card
Sketches
Photos
Tax Map
Taxes
Print View
Print This Page
Address: 3627 HEREFORD RD
Parcel: 27048178000200
Parcel Profile
Address
3627 | HEREFORD | RD
Street Status
PAVED
School District
HARBOR CREEK
Acreage
0.4407
Classification
R
Land Use Code
SINGLE FAMILY
Legal Description
3627 HEREFORD RD LOTS 119-121 160 X 120
Square Feet
1470
Topo
LEVEL
Utility
ALL PUBLIC
Zoning
Please contact your municipal zoning officer
Deed Book
2020
Deed Page
017722
2026 Tax Values
Land Value / Taxable
33,200 / 33,200.00
Building Value / Taxable
73,490 / 73,490.00
Total Value / Taxable
106,690 / 106,690.00
Clean & Green
Inactive
Homestead Status
Active
Farmstead Status
Inactive
Lerta Amount
0
Lerta Expiration Year
0
Residential Data
Card 1
Style
RANCH
Basement
FULL
Year Built
1936
Exterior Wall
ALUMINUM/VINYL
Total Living Area
1470
Full Baths
2
Half Baths
0
Fuel Type
GAS
Heating
CENTRAL
Heating System
FORCED AIR
Stories
1.0
Total Bedrooms
4
Total Family Rooms
0
Total Rooms
7
Fireplaces
0
Other Buildings & Yards
Description
Built
Width
Length
Area
FRAME OR CB DETACHED GARAGE
1960
24
28
672
Sales History
Sale Date
Type
Price
Book / Page
Other Info
9/3/2020
LAND & BUILDING
145000
2020 / 017722
SPECIAL WARRANTY DEED
2/12/2020
LAND & BUILDING
0
2020 / 002853
SPECIAL WARRANTY DEED
4/25/1995
LAND & BUILDING
59900
381 / 1029
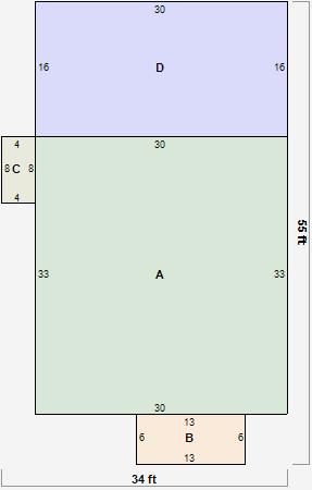
Parcel Sketches
Residential Card 1
A
MAIN
990 square feet
B
OFP OPEN FRAME PORCH
78 square feet
C
WDDCK WOOD DECKS
32 square feet
D
1S FR ONE STORY FRAME
480 square feet
Parcel Images
Please note:
this tab is for informational purposes only and may not show all delinquencies, see the Taxes tab for more accurate delinquent taxes due.