Elected Officials
Courts
Departments
Initiatives
Open Government
About
Login / Register
Home
/
Property & Tax Records
/
Property Records
/
Property & Tax Search
/
Parcel Profile
/
Print View
Search for Another Parcel
Parcel Profile
Historical Card
Sketches
Photos
Tax Map
Taxes
Print View
Print This Page
Address: 2815 NAGLE RD
Parcel: 27049172001100
Parcel Profile
Address
2815 | NAGLE | RD
Street Status
PAVED
School District
HARBOR CREEK
Acreage
0.3284
Classification
R
Land Use Code
SINGLE FAMILY
Legal Description
2815 NAGLE RD 60 X 238.62
Square Feet
1405
Topo
LEVEL
Utility
ALL PUBLIC
Zoning
Please contact your municipal zoning officer
Deed Book
0025
Deed Page
2065
2026 Tax Values
Land Value / Taxable
31,800 / 31,800.00
Building Value / Taxable
95,000 / 95,000.00
Total Value / Taxable
126,800 / 126,800.00
Clean & Green
Inactive
Homestead Status
Active
Farmstead Status
Inactive
Lerta Amount
0
Lerta Expiration Year
0
Residential Data
Card 1
Style
CAPE
Basement
FULL
Year Built
1931
Exterior Wall
ALUMINUM/VINYL
Total Living Area
1405
Full Baths
1
Half Baths
0
Fuel Type
GAS
Heating
CENTRAL
Heating System
FORCED AIR
Stories
1.0
Total Bedrooms
3
Total Family Rooms
0
Total Rooms
7
Fireplaces
0
Other Buildings & Yards
Description
Built
Width
Length
Area
FOUR SIDE CLOSED WD POLE BLDG
2007
30
40
1200
1S LEAN TO
2023
0
0
240
Sales History
Sale Date
Type
Price
Book / Page
Other Info
9/1/1987
0
0025 / 2065
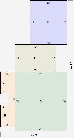
Parcel Sketches
Residential Card 1
A
MAIN
896 square feet
B
EFP ENCL FRAME PORCH
216 square feet
C
1S FR ONE STORY FRAME
330 square feet
D
FR GR FRAME GARAGE
480 square feet
Parcel Images