Elected Officials
Courts
Departments
Initiatives
Open Government
About
Login / Register
Home
/
Property & Tax Records
/
Property Records
/
Property & Tax Search
/
Parcel Profile
/
Print View
Search for Another Parcel
Parcel Profile
Historical Card
Sketches
Photos
Tax Map
Taxes
Print View
Print This Page
Address: 2676 CUMBERLAND RD
Parcel: 27052160001300
Parcel Profile
Address
2676 | CUMBERLAND | RD
Street Status
PAVED
School District
HARBOR CREEK
Acreage
0.1340
Classification
R
Land Use Code
SINGLE FAMILY
Legal Description
2676 CUMBERLAND RD LOT 141 60 X 110
Square Feet
878
Topo
LEVEL
Utility
ALL PUBLIC
Zoning
Please contact your municipal zoning officer
Deed Book
2019
Deed Page
022989
2026 Tax Values
Land Value / Taxable
27,400 / 27,400.00
Building Value / Taxable
45,200 / 45,200.00
Total Value / Taxable
72,600 / 72,600.00
Clean & Green
Inactive
Homestead Status
Inactive
Farmstead Status
Inactive
Lerta Amount
0
Lerta Expiration Year
0
Residential Data
Card 1
Style
BUNGALOW
Basement
FULL
Year Built
1916
Exterior Wall
FRAME
Total Living Area
878
Full Baths
1
Half Baths
0
Fuel Type
GAS
Heating
CENTRAL
Heating System
FORCED AIR
Stories
1.0
Total Bedrooms
1
Total Family Rooms
0
Total Rooms
4
Fireplaces
0
Other Buildings & Yards
Description
Built
Width
Length
Area
FRAME OR CB DETACHED GARAGE
1916
14
22
308
Sales History
Sale Date
Type
Price
Book / Page
Other Info
11/7/2019
LAND & BUILDING
0
2019 / 022989
SPECIAL WARRANTY DEED
12/8/2015
LAND & BUILDING
30000
2015 / 026814
DEED
4/25/2014
LAND & BUILDING
0
2014 / 007754
QUIT/CLAIM SURVIVORSHIP
6/9/1998
0
0566 / 1840
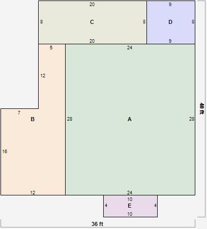
Parcel Sketches
Residential Card 1
A
MAIN
672 square feet
B
OFP OPEN FRAME PORCH
252 square feet
C
FR UT FRAME UTILITY BUILDING
160 square feet
D
UNFIN BSMT BASEMENT UNFINISHED 1S FR ONE STORY FRAME
72 square feet
E
EFP ENCL FRAME PORCH
40 square feet
Parcel Images
Please note:
this tab is for informational purposes only and may not show all delinquencies, see the Taxes tab for more accurate delinquent taxes due.