Elected Officials
Courts
Departments
Initiatives
Open Government
About
Login / Register
Home
/
Property & Tax Records
/
Property Records
/
Property & Tax Search
/
Parcel Profile
/
Print View
Search for Another Parcel
Parcel Profile
Historical Card
Sketches
Photos
Tax Map
Taxes
Print View
Print This Page
Address: 3503 STATION RD
Parcel: 27053213000500
Parcel Profile
Address
3503 | STATION | RD
Street Status
PAVED
School District
HARBOR CREEK
Acreage
1.3200
Classification
R
Land Use Code
SINGLE FAMILY
Legal Description
3503 STATION RD 1.32 AC
Square Feet
1092
Topo
LEVEL
Utility
ALL PUBLIC
Zoning
Please contact your municipal zoning officer
Deed Book
2020
Deed Page
019566
2026 Tax Values
Land Value / Taxable
41,500 / 41,500.00
Building Value / Taxable
37,510 / 37,510.00
Total Value / Taxable
79,010 / 79,010.00
Clean & Green
Inactive
Homestead Status
Inactive
Farmstead Status
Inactive
Lerta Amount
0
Lerta Expiration Year
0
Residential Data
Card 1
Style
CAPE
Basement
PART
Year Built
1910
Exterior Wall
ALUMINUM/VINYL
Total Living Area
1092
Full Baths
1
Half Baths
0
Fuel Type
GAS
Heating
CENTRAL
Heating System
FORCED AIR
Stories
1.5
Total Bedrooms
2
Total Family Rooms
0
Total Rooms
6
Fireplaces
0
Other Buildings & Yards
Description
Built
Width
Length
Area
FRAME UTILITY SHED
1940
9
15
135
FRAME UTILITY SHED
1940
24
32
768
Sales History
Sale Date
Type
Price
Book / Page
Other Info
9/24/2020
LAND & BUILDING
55110
2020 / 019566
SPECIAL WARRANTY DEED
7/21/2020
LAND & BUILDING
0
2020 / 013604
DEED
10/12/2018
LAND & BUILDING
1871
2018 / 021094
SHERIFF'S DED
11/10/2015
LAND & BUILDING
87500
2015 / 025126
SPECIAL WARRANTY DEED
11/9/2007
LAND & BUILDING
0
1459 / 0808
QUIT CLAIM DEED
8/21/2007
LAND & BUILDING
0
1441 / 0202
QUIT CLAIM DEED
6/25/2004
LAND & BUILDING
75000
1148 / 2013
WARRANTY/SURVIVORSHIP DEED
12/23/1996
0
0477 / 0531
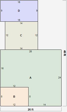
Parcel Sketches
Residential Card 1
A
MAIN
528 square feet
B
OFP OPEN FRAME PORCH
96 square feet
C
1S FR ONE STORY FRAME
168 square feet
D
EFP ENCL FRAME PORCH
144 square feet
Parcel Images
Please note:
this tab is for informational purposes only and may not show all delinquencies, see the Taxes tab for more accurate delinquent taxes due.