Elected Officials
Courts
Departments
Initiatives
Open Government
About
Login / Register
Home
/
Property & Tax Records
/
Property Records
/
Property & Tax Search
/
Parcel Profile
/
Print View
Search for Another Parcel
Parcel Profile
Historical Card
Sketches
Photos
Tax Map
Taxes
Print View
Print This Page
Address: 3823 STATION RD
Parcel: 27055191001300
Parcel Profile
Address
3823 | STATION | RD
Street Status
PAVED
School District
HARBOR CREEK
Acreage
0.2430
Classification
R
Land Use Code
SINGLE FAMILY
Legal Description
3823 STATION RD 100X225
Square Feet
1333
Topo
LEVEL
Utility
ALL PUBLIC
Zoning
Please contact your municipal zoning officer
Deed Book
0233
Deed Page
2299
2026 Tax Values
Land Value / Taxable
30,700 / 30,700.00
Building Value / Taxable
81,100 / 81,100.00
Total Value / Taxable
111,800 / 111,800.00
Clean & Green
Inactive
Homestead Status
Active
Farmstead Status
Inactive
Lerta Amount
0
Lerta Expiration Year
0
Residential Data
Card 1
Style
CAPE
Basement
FULL
Year Built
1930
Exterior Wall
ALUMINUM/VINYL
Total Living Area
1333
Full Baths
2
Half Baths
0
Fuel Type
GAS
Heating
CENTRAL
Heating System
FORCED AIR
Stories
1.0
Total Bedrooms
3
Total Family Rooms
0
Total Rooms
6
Fireplaces
0
Other Buildings & Yards
Description
Built
Width
Length
Area
FRAME OR CB DETACHED GARAGE
2016
30
22
660
Sales History
Sale Date
Type
Price
Book / Page
Other Info
10/8/1992
0
0233 / 2299
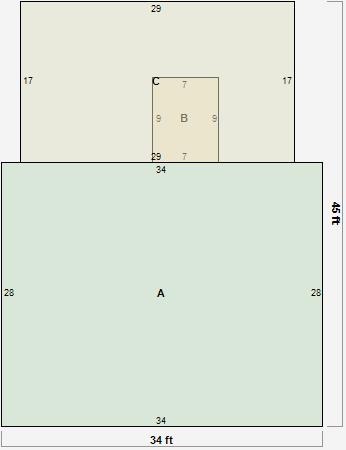
Parcel Sketches
Residential Card 1
A
MAIN
952 square feet
B
EFP ENCL FRAME PORCH
63 square feet
C
WDDCK WOOD DECKS
493 square feet
Parcel Images
Please note:
this tab is for informational purposes only and may not show all delinquencies, see the Taxes tab for more accurate delinquent taxes due.