Elected Officials
Courts
Departments
Initiatives
Open Government
About
Login / Register
Home
/
Property & Tax Records
/
Property Records
/
Property & Tax Search
/
Parcel Profile
/
Print View
Search for Another Parcel
Parcel Profile
Historical Card
Sketches
Photos
Tax Map
Taxes
Print View
Print This Page
Address: 3815 AMIDON AVE
Parcel: 27056189000100
Parcel Profile
Address
3815 | AMIDON | AVE
Street Status
PAVED
School District
HARBOR CREEK
Acreage
0.3306
Classification
R
Land Use Code
SINGLE FAMILY
Legal Description
3815 AMIDON AVE 90 X 160
Square Feet
1512
Topo
LEVEL
Utility
ALL PUBLIC
Zoning
Please contact your municipal zoning officer
Deed Book
1145
Deed Page
1851
2026 Tax Values
Land Value / Taxable
31,800 / 31,800.00
Building Value / Taxable
68,500 / 68,500.00
Total Value / Taxable
100,300 / 100,300.00
Clean & Green
Inactive
Homestead Status
Active
Farmstead Status
Inactive
Lerta Amount
0
Lerta Expiration Year
0
Residential Data
Card 1
Style
CONVENTIONAL
Basement
FULL
Year Built
1931
Exterior Wall
COMPOSITION
Total Living Area
1512
Full Baths
1
Half Baths
0
Fuel Type
GAS
Heating
CENTRAL A/C
Heating System
FORCED AIR
Stories
1.5
Total Bedrooms
2
Total Family Rooms
0
Total Rooms
5
Fireplaces
0
Other Buildings & Yards
Description
Built
Width
Length
Area
FRAME OR CB DETACHED GARAGE
1951
20
21
420
CONCRET PATIO, DETACHED
1951
0
0
160
Sales History
Sale Date
Type
Price
Book / Page
Other Info
6/16/2004
LAND & BUILDING
107000
1145 / 1851
WARRANTY/SURVIVORSHIP DEED
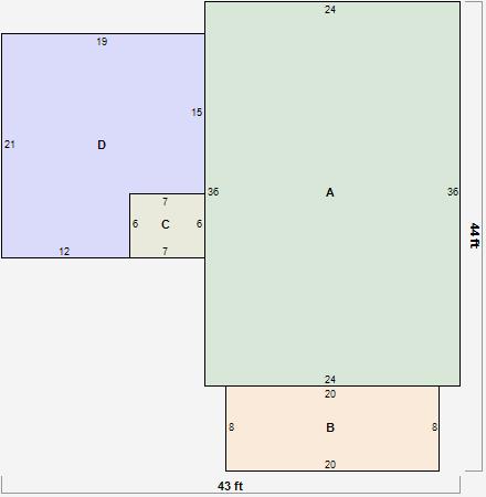
Parcel Sketches
Residential Card 1
A
MAIN
864 square feet
B
EFP ENCL FRAME PORCH
160 square feet
C
OFP OPEN FRAME PORCH
42 square feet
D
FR GR FRAME GARAGE
357 square feet
Parcel Images
Please note:
this tab is for informational purposes only and may not show all delinquencies, see the Taxes tab for more accurate delinquent taxes due.