Elected Officials
Courts
Departments
Initiatives
Open Government
About
Login / Register
Home
/
Property & Tax Records
/
Property Records
/
Property & Tax Search
/
Parcel Profile
/
Print View
Search for Another Parcel
Parcel Profile
Historical Card
Sketches
Photos
Tax Map
Taxes
Print View
Print This Page
Address: 6915 FIRMAN RD
Parcel: 27064211000302
Parcel Profile
Address
6915 | FIRMAN | RD
Street Status
PAVED
School District
HARBOR CREEK
Acreage
1.0000
Classification
R
Land Use Code
SINGLE FAMILY
Legal Description
6915 FIRMAN RD 1 AC CAL
Square Feet
1510
Topo
ABOVE STREET
Utility
GAS | WELL | SEPTIC
Zoning
Please contact your municipal zoning officer
Deed Book
2018
Deed Page
013347
2026 Tax Values
Land Value / Taxable
40,200 / 40,200.00
Building Value / Taxable
40,980 / 40,980.00
Total Value / Taxable
81,180 / 81,180.00
Clean & Green
Inactive
Homestead Status
Inactive
Farmstead Status
Inactive
Lerta Amount
0
Lerta Expiration Year
0
Residential Data
Card 1
Style
OLD STYLE
Basement
PART
Year Built
1900
Exterior Wall
ALUMINUM/VINYL
Total Living Area
1510
Full Baths
1
Half Baths
1
Fuel Type
GAS
Heating
CENTRAL
Heating System
FORCED AIR
Stories
2.0
Total Bedrooms
3
Total Family Rooms
0
Total Rooms
8
Fireplaces
0
Other Buildings & Yards
Description
Built
Width
Length
Area
FRAME OR CB DETACHED GARAGE
1975
22
24
528
Sales History
Sale Date
Type
Price
Book / Page
Other Info
7/5/2018
LAND & BUILDING
0
2018 / 013347
DEED
7/25/2017
LAND & BUILDING
100000
2017 / 015776
DEED
12/19/1985
0
1612 / 0287
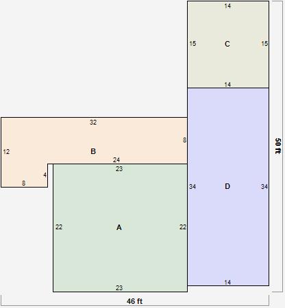
Parcel Sketches
Residential Card 1
A
MAIN
506 square feet
B
1S FR ONE STORY FRAME
288 square feet
C
1S FR ONE STORY FRAME
210 square feet
D
EFP ENCL FRAME PORCH
476 square feet
Parcel Images
Please note:
this tab is for informational purposes only and may not show all delinquencies, see the Taxes tab for more accurate delinquent taxes due.