Elected Officials
Courts
Departments
Initiatives
Open Government
About
Login / Register
Home
/
Property & Tax Records
/
Property Records
/
Property & Tax Search
/
Parcel Profile
/
Print View
Search for Another Parcel
Parcel Profile
Historical Card
Sketches
Photos
Tax Map
Taxes
Print View
Print This Page
Address: 2721 SUMMMERVILLE RD
Parcel: 27069220000200
Parcel Profile
Address
2721 | SUMMMERVILLE | RD
Street Status
PAVED
School District
HARBOR CREEK
Acreage
0.7657
Classification
R
Land Use Code
SINGLE FAMILY
Legal Description
SUMMMERVILLE RD 110 X 308.51
Square Feet
475
Topo
LEVEL
Utility
ALL PUBLIC
Zoning
Please contact your municipal zoning officer
Deed Book
0337
Deed Page
1172
2026 Tax Values
Land Value / Taxable
37,300 / 37,300.00
Building Value / Taxable
19,500 / 19,500.00
Total Value / Taxable
56,800 / 56,800.00
Clean & Green
Inactive
Homestead Status
Inactive
Farmstead Status
Inactive
Lerta Amount
0
Lerta Expiration Year
0
Residential Data
Card 1
Style
BUNGALOW
Basement
NONE
Year Built
1930
Exterior Wall
ALUMINUM/VINYL
Total Living Area
475
Full Baths
1
Half Baths
0
Fuel Type
GAS
Heating
NON CENTRAL
Heating System
FORCED AIR
Stories
1.0
Total Bedrooms
1
Total Family Rooms
0
Total Rooms
2
Fireplaces
0
Other Buildings & Yards
No OBY Data Found
Sales History
Sale Date
Type
Price
Book / Page
Other Info
5/31/1994
0
0337 / 1172
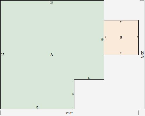
Parcel Sketches
Residential Card 1
A
MAIN
426 square feet
B
1S FR ONE STORY FRAME
49 square feet
Parcel Images
Please note:
this tab is for informational purposes only and may not show all delinquencies, see the Taxes tab for more accurate delinquent taxes due.