Elected Officials
Courts
Departments
Initiatives
Open Government
About
Login / Register
Home
/
Property & Tax Records
/
Property Records
/
Property & Tax Search
/
Parcel Profile
/
Print View
Search for Another Parcel
Parcel Profile
Historical Card
Sketches
Photos
Tax Map
Taxes
Print View
Print This Page
Address: 4658 BACKUS RD
Parcel: 27075231000400
Parcel Profile
Address
4658 | BACKUS | RD
Street Status
PAVED
School District
HARBOR CREEK
Acreage
1.0290
Classification
R
Land Use Code
SINGLE FAMILY
Legal Description
4658 BACKUS RD 1.029 AC CAL
Square Feet
778
Topo
LEVEL
Utility
GAS | WELL | SEPTIC
Zoning
Please contact your municipal zoning officer
Deed Book
2016
Deed Page
001359
2026 Tax Values
Land Value / Taxable
35,200 / 35,200.00
Building Value / Taxable
37,680 / 37,680.00
Total Value / Taxable
72,880 / 72,880.00
Clean & Green
Inactive
Homestead Status
Active
Farmstead Status
Inactive
Lerta Amount
0
Lerta Expiration Year
0
Residential Data
Card 1
Style
BUNGALOW
Basement
FULL
Year Built
1910
Exterior Wall
FRAME
Total Living Area
778
Full Baths
1
Half Baths
0
Fuel Type
GAS
Heating
NONE
Heating System
FORCED AIR
Stories
1.0
Total Bedrooms
2
Total Family Rooms
0
Total Rooms
5
Fireplaces
0
Other Buildings & Yards
No OBY Data Found
Sales History
Sale Date
Type
Price
Book / Page
Other Info
1/21/2016
LAND & BUILDING
79900
2016 / 001359
DEED
10/10/2012
LAND & BUILDING
60000
2012 / 028010
DEED
11/14/1990
0
0143 / 1196
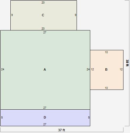
Parcel Sketches
Residential Card 1
A
MAIN
648 square feet
B
FR UT FRAME UTILITY BUILDING
120 square feet
C
WDDCK WOOD DECKS
180 square feet
D
MA_PT CONC/MAS PATIO
135 square feet
Parcel Images
Please note:
this tab is for informational purposes only and may not show all delinquencies, see the Taxes tab for more accurate delinquent taxes due.