Elected Officials
Courts
Departments
Initiatives
Open Government
About
Login / Register
Home
/
Property & Tax Records
/
Property Records
/
Property & Tax Search
/
Parcel Profile
/
Print View
Search for Another Parcel
Parcel Profile
Historical Card
Sketches
Photos
Tax Map
Taxes
Print View
Print This Page
Address: 10601 OLD LAKE RD
Parcel: 28006007000100
Parcel Profile
Address
10601 | OLD LAKE | RD
Street Status
SEMI IMPROVED
School District
GIRARD SCHOOL
Acreage
4.1500
Classification
R
Land Use Code
SINGLE FAMILY
Legal Description
10601 OLD LAKE RD 4.15 AC CAL
Square Feet
1260
Topo
LEVEL | STEEP
Utility
WELL | SEPTIC | GAS
Zoning
Please contact your municipal zoning officer
Deed Book
2024
Deed Page
004564
2026 Tax Values
Land Value / Taxable
43,600 / 43,600.00
Building Value / Taxable
62,000 / 62,000.00
Total Value / Taxable
105,600 / 105,600.00
Clean & Green
Inactive
Homestead Status
Inactive
Farmstead Status
Inactive
Lerta Amount
0
Lerta Expiration Year
0
Residential Data
Card 1
Style
OLD STYLE
Basement
PART
Year Built
1895
Exterior Wall
FRAME
Total Living Area
1260
Full Baths
1
Half Baths
1
Fuel Type
GAS
Heating
CENTRAL
Heating System
FORCED AIR
Stories
2.0
Total Bedrooms
3
Total Family Rooms
0
Total Rooms
8
Fireplaces
0
Other Buildings & Yards
Description
Built
Width
Length
Area
FOUR SIDE CLOSED WD POLE BLDG
1983
32
48
1536
1S LEAN TO
1983
8
48
384
Sales History
Sale Date
Type
Price
Book / Page
Other Info
3/27/2024
LAND & BUILDING
0
2024 / 004564
FIDUCIARY DEED
7/11/1995
0
0392 / 0819
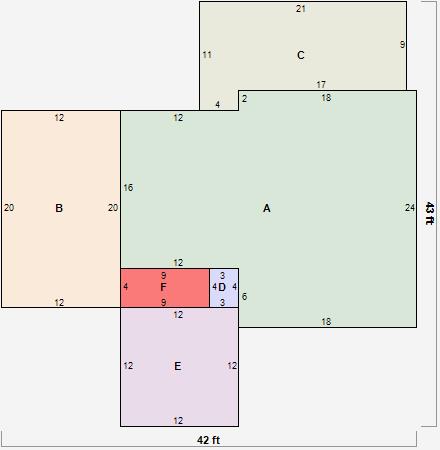
Parcel Sketches
Residential Card 1
A
MAIN
624 square feet
B
FR GR FRAME GARAGE
240 square feet
C
GRNHS ATTACHED GREENHOUSE
197 square feet
D
1S FR ONE STORY FRAME
12 square feet
E
WDDCK WOOD DECKS
144 square feet
F
OFP OPEN FRAME PORCH
36 square feet
Parcel Images
Please note:
this tab is for informational purposes only and may not show all delinquencies, see the Taxes tab for more accurate delinquent taxes due.