Elected Officials
Courts
Departments
Initiatives
Open Government
About
Login / Register
Home
/
Property & Tax Records
/
Property Records
/
Property & Tax Search
/
Parcel Profile
/
Print View
Search for Another Parcel
Parcel Profile
Historical Card
Sketches
Photos
Tax Map
Taxes
Print View
Print This Page
Address: 9996 SMITH ST
Parcel: 28010004004500
Parcel Profile
Address
9996 | SMITH | ST
Street Status
SEMI IMPROVED | SIDEWALK
School District
GIRARD SCHOOL
Acreage
0.4462
Classification
R
Land Use Code
SINGLE FAMILY
Legal Description
9996 SMITH ST 85.91 X 226.09
Square Feet
1576
Topo
LEVEL
Utility
ALL PUBLIC
Zoning
Please contact your municipal zoning officer
Deed Book
1278
Deed Page
0239
2026 Tax Values
Land Value / Taxable
20,200 / 20,200.00
Building Value / Taxable
37,250 / 37,250.00
Total Value / Taxable
57,450 / 57,450.00
Clean & Green
Inactive
Homestead Status
Inactive
Farmstead Status
Inactive
Lerta Amount
0
Lerta Expiration Year
0
Residential Data
Card 1
Style
OLD STYLE
Basement
FULL
Year Built
1910
Exterior Wall
COMPOSITION
Total Living Area
1576
Full Baths
1
Half Baths
0
Fuel Type
GAS
Heating
CENTRAL
Heating System
FORCED AIR
Stories
2.0
Total Bedrooms
3
Total Family Rooms
0
Total Rooms
6
Fireplaces
0
Other Buildings & Yards
No OBY Data Found
Sales History
Sale Date
Type
Price
Book / Page
Other Info
10/13/2005
LAND & BUILDING
0
1278 / 0239
QUIT CLAIM DEED
9/21/2004
LAND & BUILDING
0
1174 / 2067
QUIT CLAIM DEED
5/30/2002
LAND & BUILDING
0
885 / 885
QUIT CLAIM DEED
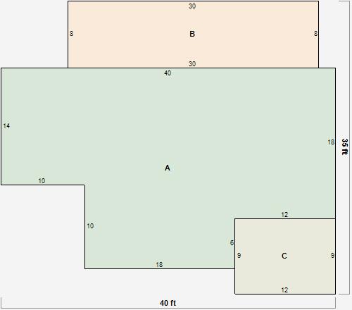
Parcel Sketches
Residential Card 1
A
MAIN
788 square feet
B
OFP OPEN FRAME PORCH
240 square feet
C
EFP ENCL FRAME PORCH
108 square feet
Parcel Images
Please note:
this tab is for informational purposes only and may not show all delinquencies, see the Taxes tab for more accurate delinquent taxes due.