Elected Officials
Courts
Departments
Initiatives
Open Government
About
Login / Register
Home
/
Property & Tax Records
/
Property Records
/
Property & Tax Search
/
Parcel Profile
/
Print View
Search for Another Parcel
Parcel Profile
Historical Card
Sketches
Photos
Tax Map
Taxes
Print View
Print This Page
Address: 9950 SMITH ST
Parcel: 28010004005501
Parcel Profile
Address
9950 | SMITH | ST
Street Status
SEMI IMPROVED | SIDEWALK
School District
GIRARD SCHOOL
Acreage
0.5189
Classification
R
Land Use Code
SINGLE FAMILY
Legal Description
9950 SMITH ST 100 X 226.04
Square Feet
1905
Topo
LEVEL
Utility
ALL PUBLIC
Zoning
Please contact your municipal zoning officer
Deed Book
1323
Deed Page
0364
2026 Tax Values
Land Value / Taxable
21,900 / 21,900.00
Building Value / Taxable
83,200 / 83,200.00
Total Value / Taxable
105,100 / 105,100.00
Clean & Green
Inactive
Homestead Status
Active
Farmstead Status
Inactive
Lerta Amount
0
Lerta Expiration Year
0
Residential Data
Card 1
Style
CAPE
Basement
FULL
Year Built
1926
Exterior Wall
ALUMINUM/VINYL
Total Living Area
1905
Full Baths
1
Half Baths
0
Fuel Type
GAS
Heating
CENTRAL
Heating System
FORCED AIR
Stories
1.5
Total Bedrooms
3
Total Family Rooms
0
Total Rooms
8
Fireplaces
0
Other Buildings & Yards
Description
Built
Width
Length
Area
METAL SHED
1990
10
10
100
Sales History
Sale Date
Type
Price
Book / Page
Other Info
10/4/1978
0
1323 / 0364
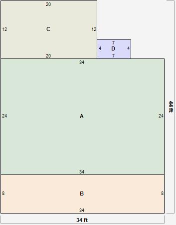
Parcel Sketches
Residential Card 1
A
MAIN
816 square feet
B
OMP OPEN MASONRY PORCH
272 square feet
C
MA_PT CONC/MAS PATIO CANPY CANOPY
240 square feet
D
1S FR ONE STORY FRAME
28 square feet
Parcel Images
Please note:
this tab is for informational purposes only and may not show all delinquencies, see the Taxes tab for more accurate delinquent taxes due.