Elected Officials
Courts
Departments
Initiatives
Open Government
About
Login / Register
Home
/
Property & Tax Records
/
Property Records
/
Property & Tax Search
/
Parcel Profile
/
Print View
Search for Another Parcel
Parcel Profile
Historical Card
Sketches
Photos
Tax Map
Taxes
Print View
Print This Page
Address: 10043 SMITH ST
Parcel: 28013017000100
Parcel Profile
Address
10043 | SMITH | ST
Street Status
PAVED | SIDEWALK
School District
GIRARD SCHOOL
Acreage
0.3664
Classification
R
Land Use Code
SINGLE FAMILY
Legal Description
10043 SMITH ST 100 X 159.6
Square Feet
2516
Topo
LEVEL
Utility
ALL PUBLIC
Zoning
Please contact your municipal zoning officer
Deed Book
1611
Deed Page
2516
2026 Tax Values
Land Value / Taxable
18,300 / 18,300.00
Building Value / Taxable
52,500 / 52,500.00
Total Value / Taxable
70,800 / 70,800.00
Clean & Green
Inactive
Homestead Status
Inactive
Farmstead Status
Inactive
Lerta Amount
0
Lerta Expiration Year
0
Residential Data
Card 1
Style
OLD STYLE
Basement
FULL
Year Built
1900
Exterior Wall
ALUMINUM/VINYL
Total Living Area
2516
Full Baths
2
Half Baths
0
Fuel Type
GAS
Heating
CENTRAL
Heating System
FORCED AIR
Stories
2.0
Total Bedrooms
5
Total Family Rooms
0
Total Rooms
10
Fireplaces
0
Other Buildings & Yards
Description
Built
Width
Length
Area
FRAME OR CB DETACHED GARAGE
1940
18
20
360
Sales History
Sale Date
Type
Price
Book / Page
Other Info
12/31/2009
LAND & BUILDING
64500
1611 / 2516
WARRANTY/SURVIVORSHIP DEED
3/12/1997
LAND & BUILDING
46000
488 / 1103
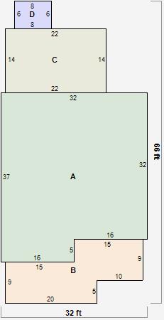
Parcel Sketches
Residential Card 1
A
MAIN
1104 square feet
B
OFP OPEN FRAME PORCH
295 square feet
C
UNFIN BSMT BASEMENT UNFINISHED 1S FR ONE STORY FRAME
308 square feet
D
EFP ENCL FRAME PORCH
48 square feet
Parcel Images
Please note:
this tab is for informational purposes only and may not show all delinquencies, see the Taxes tab for more accurate delinquent taxes due.