Elected Officials
Courts
Departments
Initiatives
Open Government
About
Login / Register
Home
/
Property & Tax Records
/
Property Records
/
Property & Tax Search
/
Parcel Profile
/
Print View
Search for Another Parcel
Parcel Profile
Historical Card
Sketches
Photos
Tax Map
Taxes
Print View
Print This Page
Address: 2317 RICE AVE
Parcel: 28013019000600
Parcel Profile
Address
2317 | RICE | AVE
Street Status
PAVED | SIDEWALK
School District
GIRARD SCHOOL
Acreage
0.9394
Classification
R
Land Use Code
MULTIPLE DWELLINGS
Legal Description
2317 21 RICE AVE 66 X 620
Square Feet
3304
Topo
LEVEL
Utility
ALL PUBLIC
Zoning
Please contact your municipal zoning officer
Deed Book
2022
Deed Page
008964
2026 Tax Values
Land Value / Taxable
28,600 / 28,600.00
Building Value / Taxable
106,400 / 106,400.00
Total Value / Taxable
135,000 / 135,000.00
Clean & Green
Inactive
Homestead Status
Active
Farmstead Status
Inactive
Lerta Amount
0
Lerta Expiration Year
0
Residential Data
Card 1
Style
OLD STYLE
Basement
FULL
Year Built
1900
Exterior Wall
ALUMINUM/VINYL
Total Living Area
1904
Full Baths
1
Half Baths
1
Fuel Type
GAS
Heating
CENTRAL
Heating System
HOT WATER
Stories
2.0
Total Bedrooms
3
Total Family Rooms
0
Total Rooms
6
Fireplaces
0
Card 2
Style
OLD STYLE
Basement
FULL
Year Built
1900
Exterior Wall
ALUMINUM/VINYL
Total Living Area
1400
Full Baths
1
Half Baths
1
Fuel Type
GAS
Heating
CENTRAL
Heating System
HOT WATER
Stories
2.0
Total Bedrooms
3
Total Family Rooms
0
Total Rooms
6
Fireplaces
0
Other Buildings & Yards
Description
Built
Width
Length
Area
FLAT BARN
1950
14
16
224
BANK BARN ADDITION
1950
15
23
345
Sales History
Sale Date
Type
Price
Book / Page
Other Info
4/27/2022
LAND & BUILDING
0
2022 / 008964
QUIT CLAIM DEED
6/13/2006
LAND & BUILDING
0
1336 / 0871
DEED
3/6/2003
LAND & BUILDING
0
0983 / 0481
WARRANTY/SURVIVORSHIP DEED
9/18/1998
0
0588 / 1221
Parcel Sketches
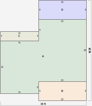
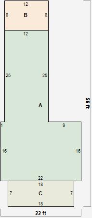
Residential Card 1
A
MAIN
872 square feet
B
OFP OPEN FRAME PORCH
160 square feet
C
OFP OPEN FRAME PORCH
64 square feet
D
UNFIN BSMT BASEMENT UNFINISHED 1S FR ONE STORY FRAME
160 square feet
Residential Card 2
A
MAIN
652 square feet
B
1S FR ONE STORY FRAME
96 square feet
C
OFP OPEN FRAME PORCH
126 square feet
Parcel Images
Please note:
this tab is for informational purposes only and may not show all delinquencies, see the Taxes tab for more accurate delinquent taxes due.