Elected Officials
Courts
Departments
Initiatives
Open Government
About
Login / Register
Home
/
Property & Tax Records
/
Property Records
/
Property & Tax Search
/
Parcel Profile
/
Print View
Search for Another Parcel
Parcel Profile
Historical Card
Sketches
Photos
Tax Map
Taxes
Print View
Print This Page
Address: 2347 RICE AVE
Parcel: 28013019000900
Parcel Profile
Address
2347 | RICE | AVE
Street Status
PAVED | SIDEWALK
School District
GIRARD SCHOOL
Acreage
0.9394
Classification
R
Land Use Code
DWELLING W/ COMMERCIAL USE PRIMARY RES
Legal Description
2347 RICE AVE 66 X 620
Square Feet
2056
Topo
LEVEL
Utility
ALL PUBLIC
Zoning
Please contact your municipal zoning officer
Deed Book
0023
Deed Page
1102
2026 Tax Values
Land Value / Taxable
31,800 / 31,800.00
Building Value / Taxable
91,200 / 91,200.00
Total Value / Taxable
123,000 / 123,000.00
Clean & Green
Inactive
Homestead Status
Active
Farmstead Status
Inactive
Lerta Amount
0
Lerta Expiration Year
0
Residential Data
Card 1
Style
OLD STYLE
Basement
FULL
Year Built
1900
Exterior Wall
FRAME
Total Living Area
2056
Full Baths
2
Half Baths
0
Fuel Type
GAS
Heating
CENTRAL A/C
Heating System
FORCED AIR
Stories
2.0
Total Bedrooms
3
Total Family Rooms
2
Total Rooms
9
Fireplaces
0
Other Buildings & Yards
Description
Built
Width
Length
Area
FOUR SIDE CLOSED MTL POLE BLDG
1989
30
60
1800
Sales History
Sale Date
Type
Price
Book / Page
Other Info
8/12/1987
0
0023 / 1102
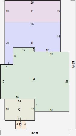
Parcel Sketches
Residential Card 1
A
MAIN
784 square feet
B
MA STOOP/TERR MAS STOOP
20 square feet
C
EFP ENCL FRAME PORCH
140 square feet
D
1S FR ONE STORY FRAME
368 square feet
E
OFP OPEN FRAME PORCH
260 square feet
Parcel Images
Please note:
this tab is for informational purposes only and may not show all delinquencies, see the Taxes tab for more accurate delinquent taxes due.