Elected Officials
Courts
Departments
Initiatives
Open Government
About
Login / Register
Home
/
Property & Tax Records
/
Property Records
/
Property & Tax Search
/
Parcel Profile
/
Print View
Search for Another Parcel
Parcel Profile
Historical Card
Sketches
Photos
Tax Map
Taxes
Print View
Print This Page
Address: 2371 RICE AVE
Parcel: 28013019001100
Parcel Profile
Address
2371 | RICE | AVE
Street Status
PAVED | SIDEWALK
School District
GIRARD SCHOOL
Acreage
1.2500
Classification
R
Land Use Code
SINGLE FAMILY
Legal Description
2371 RICE AVE 1.25 AC
Square Feet
1924
Topo
LEVEL
Utility
ALL PUBLIC
Zoning
Please contact your municipal zoning officer
Deed Book
2023
Deed Page
014151
2026 Tax Values
Land Value / Taxable
34,100 / 34,100.00
Building Value / Taxable
98,990 / 98,990.00
Total Value / Taxable
133,090 / 133,090.00
Clean & Green
Inactive
Homestead Status
Active
Farmstead Status
Inactive
Lerta Amount
0
Lerta Expiration Year
0
Residential Data
Card 1
Style
CONVENTIONAL
Basement
FULL
Year Built
1900
Exterior Wall
ALUMINUM/VINYL
Total Living Area
1924
Full Baths
1
Half Baths
0
Fuel Type
GAS
Heating
CENTRAL A/C
Heating System
FORCED AIR
Stories
2.0
Total Bedrooms
4
Total Family Rooms
1
Total Rooms
8
Fireplaces
0
Other Buildings & Yards
Description
Built
Width
Length
Area
FRAME OR CB DETACHED GARAGE
1940
24
26
624
Sales History
Sale Date
Type
Price
Book / Page
Other Info
8/25/2023
LAND & BUILDING
215000
2023 / 014150
SPECIAL WARRANTY DEED
8/25/2023
LAND & BUILDING
215000
2023 / 014151
SPECIAL WARRANTY DEED
8/24/2017
LAND & BUILDING
127000
2017 / 018359
SPECIAL WARRANTY DEED
12/15/1972
0
1085 / 0458
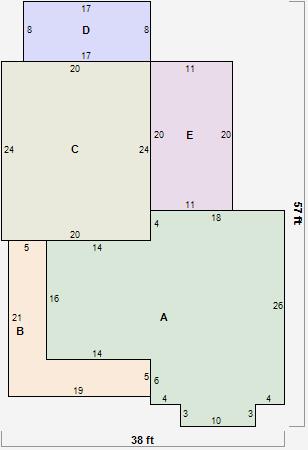
Parcel Sketches
Residential Card 1
A
MAIN
722 square feet
B
OFP OPEN FRAME PORCH
175 square feet
C
UNFIN BSMT BASEMENT UNFINISHED 1S FR ONE STORY FRAME
480 square feet
D
EFP ENCL FRAME PORCH
136 square feet
E
EFP ENCL FRAME PORCH
220 square feet
Parcel Images
Please note:
this tab is for informational purposes only and may not show all delinquencies, see the Taxes tab for more accurate delinquent taxes due.