Elected Officials
Courts
Departments
Initiatives
Open Government
About
Login / Register
Home
/
Property & Tax Records
/
Property Records
/
Property & Tax Search
/
Parcel Profile
/
Print View
Search for Another Parcel
Parcel Profile
Historical Card
Sketches
Photos
Tax Map
Taxes
Print View
Print This Page
Address: 2386 RICE AVE
Parcel: 28013023001200
Parcel Profile
Address
2386 | RICE | AVE
Street Status
PAVED | SIDEWALK
School District
GIRARD SCHOOL
Acreage
0.4242
Classification
R
Land Use Code
SINGLE FAMILY
Legal Description
2386 RICE AVE 82.5 X 224
Square Feet
2568
Topo
LEVEL
Utility
ALL PUBLIC
Zoning
Please contact your municipal zoning officer
Deed Book
2024
Deed Page
016496
2026 Tax Values
Land Value / Taxable
19,700 / 19,700.00
Building Value / Taxable
96,240 / 96,240.00
Total Value / Taxable
115,940 / 115,940.00
Clean & Green
Inactive
Homestead Status
Active
Farmstead Status
Inactive
Lerta Amount
0
Lerta Expiration Year
0
Residential Data
Card 1
Style
OLD STYLE
Basement
FULL
Year Built
1900
Exterior Wall
FRAME
Total Living Area
2568
Full Baths
2
Half Baths
1
Fuel Type
GAS
Heating
CENTRAL
Heating System
FORCED AIR
Stories
2.0
Total Bedrooms
3
Total Family Rooms
1
Total Rooms
8
Fireplaces
0
Other Buildings & Yards
Description
Built
Width
Length
Area
FRAME OR CB DETACHED GARAGE
1900
20
20
400
Sales History
Sale Date
Type
Price
Book / Page
Other Info
10/11/2024
LAND & BUILDING
0
2024 / 016496
FIDUCIARY DEED
6/10/2005
LAND & BUILDING
0
1241 / 1486
QUIT CLAIM DEED
6/26/2000
LAND & BUILDING
30000
712 / 307
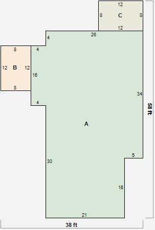
Parcel Sketches
Residential Card 1
A
MAIN
1284 square feet
B
OFP OPEN FRAME PORCH
96 square feet
C
EFP ENCL FRAME PORCH
96 square feet
Parcel Images
Please note:
this tab is for informational purposes only and may not show all delinquencies, see the Taxes tab for more accurate delinquent taxes due.