Elected Officials
Courts
Departments
Initiatives
Open Government
About
Login / Register
Home
/
Property & Tax Records
/
Property Records
/
Property & Tax Search
/
Parcel Profile
/
Print View
Search for Another Parcel
Parcel Profile
Historical Card
Sketches
Photos
Tax Map
Taxes
Print View
Print This Page
Address: 2225 LAKE ST
Parcel: 28013024002300
Parcel Profile
Address
2225 | LAKE | ST
Street Status
PAVED | SIDEWALK
School District
GIRARD SCHOOL
Acreage
0.2654
Classification
R
Land Use Code
SINGLE FAMILY
Legal Description
2225 LAKE ST 86 X 126 IR
Square Feet
1747
Topo
LEVEL
Utility
ALL PUBLIC
Zoning
Please contact your municipal zoning officer
Deed Book
2022
Deed Page
026808
2026 Tax Values
Land Value / Taxable
16,000 / 16,000.00
Building Value / Taxable
91,000 / 91,000.00
Total Value / Taxable
107,000 / 107,000.00
Clean & Green
Inactive
Homestead Status
Active
Farmstead Status
Inactive
Lerta Amount
0
Lerta Expiration Year
0
Residential Data
Card 1
Style
OLD STYLE
Basement
FULL
Year Built
1900
Exterior Wall
ALUMINUM/VINYL
Total Living Area
1747
Full Baths
2
Half Baths
0
Fuel Type
GAS
Heating
CENTRAL
Heating System
HOT WATER
Stories
2.0
Total Bedrooms
3
Total Family Rooms
0
Total Rooms
7
Fireplaces
0
Other Buildings & Yards
Description
Built
Width
Length
Area
FRAME OR CB DETACHED GARAGE
1900
12
22
264
Sales History
Sale Date
Type
Price
Book / Page
Other Info
12/28/2022
LAND & BUILDING
180000
2022 / 026808
SPECIAL WARRANTY DEED
4/23/2008
LAND & BUILDING
0
1490 / 0491
DEED
11/8/2005
LAND & BUILDING
99500
1285 / 1470
DEED
6/21/2004
LAND & BUILDING
90000
1147 / 0375
SPECIAL WARRANTY DEED
11/25/2002
0
0949 / 0537
AFFIDAVIT
3/20/2001
0
0759 / 1121
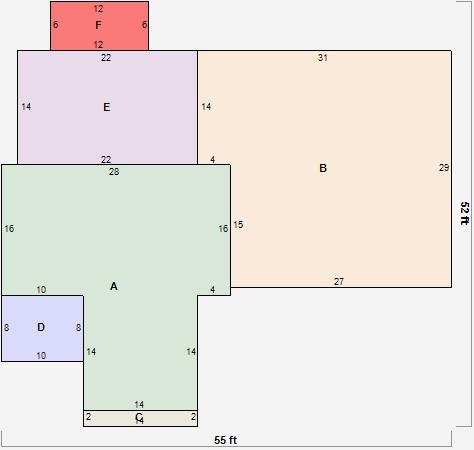
Parcel Sketches
Residential Card 1
A
MAIN
644 square feet
B
FR GR FRAME GARAGE
839 square feet
C
FRBAY FRAME BAY
28 square feet
D
OFP OPEN FRAME PORCH
80 square feet
E
UNFIN BSMT BASEMENT UNFINISHED 1S FR ONE STORY FRAME AT FN ATTIC-FINISHED
308 square feet
F
EFP ENCL FRAME PORCH
72 square feet
Parcel Images
Please note:
this tab is for informational purposes only and may not show all delinquencies, see the Taxes tab for more accurate delinquent taxes due.