Elected Officials
Courts
Departments
Initiatives
Open Government
About
Login / Register
Home
/
Property & Tax Records
/
Property Records
/
Property & Tax Search
/
Parcel Profile
/
Print View
Search for Another Parcel
Parcel Profile
Historical Card
Sketches
Photos
Tax Map
Taxes
Print View
Print This Page
Address: 10073 SEELEY ST
Parcel: 28013025000200
Parcel Profile
Address
10073 | SEELEY | ST
Street Status
PAVED | SIDEWALK
School District
GIRARD SCHOOL
Acreage
0.2189
Classification
R
Land Use Code
TWO FAMILY
Legal Description
10073 SEELEY ST 66 X 155 IRR
Square Feet
2029
Topo
LEVEL
Utility
ALL PUBLIC
Zoning
Please contact your municipal zoning officer
Deed Book
1276
Deed Page
0849
2026 Tax Values
Land Value / Taxable
14,900 / 14,900.00
Building Value / Taxable
48,610 / 48,610.00
Total Value / Taxable
63,510 / 63,510.00
Clean & Green
Inactive
Homestead Status
Inactive
Farmstead Status
Inactive
Lerta Amount
0
Lerta Expiration Year
0
Residential Data
Card 1
Style
OLD STYLE
Basement
FULL
Year Built
1900
Exterior Wall
ALUMINUM/VINYL
Total Living Area
2029
Full Baths
2
Half Baths
0
Fuel Type
GAS
Heating
CENTRAL
Heating System
FORCED AIR
Stories
2.0
Total Bedrooms
3
Total Family Rooms
0
Total Rooms
9
Fireplaces
0
Other Buildings & Yards
Description
Built
Width
Length
Area
FRAME OR CB DETACHED GARAGE
1994
22
14
308
DETACHED OPEN FR PORCH
1994
7
14
98
FRAME UTILITY SHED
1994
10
16
160
Sales History
Sale Date
Type
Price
Book / Page
Other Info
10/6/2005
LAND & BUILDING
75000
1276 / 0849
WARRANTY/SURVIVORSHIP DEED
10/12/1988
0
0067 / 0373
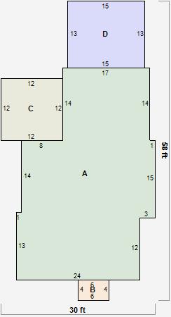
Parcel Sketches
Residential Card 1
A
MAIN
917 square feet
B
OFP OPEN FRAME PORCH
24 square feet
C
EFP ENCL FRAME PORCH
144 square feet
D
1S FR ONE STORY FRAME
195 square feet
Parcel Images
Please note:
this tab is for informational purposes only and may not show all delinquencies, see the Taxes tab for more accurate delinquent taxes due.