Elected Officials
Courts
Departments
Initiatives
Open Government
About
Login / Register
Home
/
Property & Tax Records
/
Property Records
/
Property & Tax Search
/
Parcel Profile
/
Print View
Search for Another Parcel
Parcel Profile
Historical Card
Sketches
Photos
Tax Map
Taxes
Print View
Print This Page
Address: 10048 SAMPSON AVE
Parcel: 28013025001300
Parcel Profile
Address
10048 | SAMPSON | AVE
Street Status
PAVED | SIDEWALK
School District
GIRARD SCHOOL
Acreage
0.4432
Classification
R
Land Use Code
SINGLE FAMILY
Legal Description
10048 SAMPSON AVE 82.5 X 234
Square Feet
1336
Topo
LEVEL
Utility
ALL PUBLIC
Zoning
Please contact your municipal zoning officer
Deed Book
0321
Deed Page
1656
2026 Tax Values
Land Value / Taxable
20,100 / 20,100.00
Building Value / Taxable
45,700 / 45,700.00
Total Value / Taxable
65,800 / 65,800.00
Clean & Green
Inactive
Homestead Status
Inactive
Farmstead Status
Inactive
Lerta Amount
0
Lerta Expiration Year
0
Residential Data
Card 1
Style
OLD STYLE
Basement
PART
Year Built
1900
Exterior Wall
FRAME
Total Living Area
1336
Full Baths
1
Half Baths
0
Fuel Type
GAS
Heating
CENTRAL
Heating System
FORCED AIR
Stories
2.0
Total Bedrooms
2
Total Family Rooms
0
Total Rooms
6
Fireplaces
0
Other Buildings & Yards
Description
Built
Width
Length
Area
FLAT BARN
1914
16
24
384
Sales History
Sale Date
Type
Price
Book / Page
Other Info
3/2/1994
0
0321 / 1656
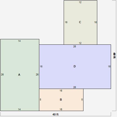
Parcel Sketches
Residential Card 1
A
MAIN
364 square feet
B
OFP OPEN FRAME PORCH
128 square feet
C
1S FR ONE STORY FRAME
192 square feet
D
1S FR ONE STORY FRAME AT UN ATTIC-UNFINISHED
416 square feet
Parcel Images
Please note:
this tab is for informational purposes only and may not show all delinquencies, see the Taxes tab for more accurate delinquent taxes due.