Elected Officials
Courts
Departments
Initiatives
Open Government
About
Login / Register
Home
/
Property & Tax Records
/
Property Records
/
Property & Tax Search
/
Parcel Profile
/
Print View
Search for Another Parcel
Parcel Profile
Historical Card
Sketches
Photos
Tax Map
Taxes
Print View
Print This Page
Address: 2460 MAPLE AVE
Parcel: 28014028001700
Parcel Profile
Address
2460 | MAPLE | AVE
Street Status
PAVED | SIDEWALK
School District
GIRARD SCHOOL
Acreage
0.2000
Classification
R
Land Use Code
SINGLE FAMILY
Legal Description
2460 MAPLE AVE 67 X 130
Square Feet
2041
Topo
LEVEL
Utility
ALL PUBLIC
Zoning
Please contact your municipal zoning officer
Deed Book
1254
Deed Page
0152
2025 Tax Values
Land Value / Taxable
14,400 / 14,400.00
Building Value / Taxable
68,500 / 68,500.00
Total Value / Taxable
82,900 / 82,900.00
Clean & Green
Inactive
Homestead Status
Active
Farmstead Status
Inactive
Lerta Amount
0
Lerta Expiration Year
0
Residential Data
Card 1
Style
OLD STYLE
Basement
PART
Year Built
1900
Exterior Wall
ALUMINUM/VINYL
Total Living Area
2041
Full Baths
1
Half Baths
0
Fuel Type
GAS
Heating
CENTRAL
Heating System
HOT WATER
Stories
1.5
Total Bedrooms
5
Total Family Rooms
0
Total Rooms
10
Fireplaces
0
Other Buildings & Yards
Description
Built
Width
Length
Area
FRAME UTILITY SHED
1930
9
12
108
FRAME OR CB DETACHED GARAGE
2020
20
20
400
DETACHED OPEN FR PORCH
2020
9
12
108
Sales History
Sale Date
Type
Price
Book / Page
Other Info
7/25/2005
LAND & BUILDING
65000
1254 / 0152
WARRANTY/SURVIVORSHIP DEED
12/12/1984
0
1563 / 0011
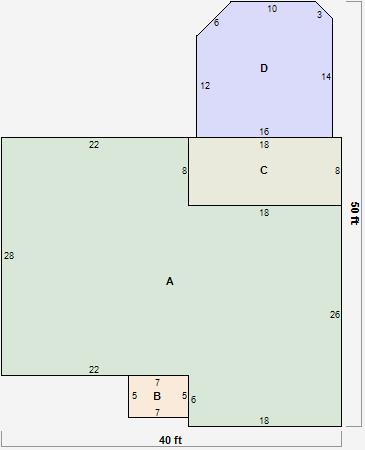
Parcel Sketches
Residential Card 1
A
MAIN
1084 square feet
B
EFP ENCL FRAME PORCH
35 square feet
C
1S FR ONE STORY FRAME
144 square feet
D
WDDCK WOOD DECKS
246 square feet
Parcel Images