Elected Officials
Courts
Departments
Initiatives
Open Government
About
Login / Register
Home
/
Property & Tax Records
/
Property Records
/
Property & Tax Search
/
Parcel Profile
/
Print View
Search for Another Parcel
Parcel Profile
Historical Card
Sketches
Photos
Tax Map
Taxes
Print View
Print This Page
Address: 10236 DUNN AVE
Parcel: 28014030000400
Parcel Profile
Address
10236 | DUNN | AVE
Street Status
PAVED | SIDEWALK
School District
GIRARD SCHOOL
Acreage
0.1902
Classification
R
Land Use Code
SINGLE FAMILY
Legal Description
10236 DUNN AVE 75 X 110 IRR
Square Feet
896
Topo
LEVEL
Utility
ALL PUBLIC
Zoning
Please contact your municipal zoning officer
Deed Book
2021
Deed Page
034201
2025 Tax Values
Land Value / Taxable
11,400 / 11,400.00
Building Value / Taxable
29,800 / 29,800.00
Total Value / Taxable
41,200 / 41,200.00
Clean & Green
Inactive
Homestead Status
Inactive
Farmstead Status
Inactive
Lerta Amount
0
Lerta Expiration Year
0
Residential Data
Card 1
Style
OLD STYLE
Basement
PART
Year Built
1900
Exterior Wall
COMPOSITION
Total Living Area
896
Full Baths
1
Half Baths
0
Fuel Type
GAS
Heating
CENTRAL
Heating System
FORCED AIR
Stories
1.5
Total Bedrooms
2
Total Family Rooms
0
Total Rooms
5
Fireplaces
0
Other Buildings & Yards
Description
Built
Width
Length
Area
FRAME OR CB DETACHED GARAGE
1927
12
20
240
Sales History
Sale Date
Type
Price
Book / Page
Other Info
12/29/2021
LAND & BUILDING
45000
2021 / 034201
SPECIAL WARRANTY DEED
11/23/2016
LAND & BUILDING
0
2016 / 025607
CORRECTIVE DEED
12/4/1987
0
0035 / 1489
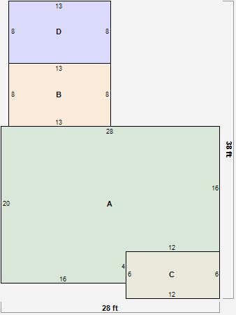
Parcel Sketches
Residential Card 1
A
MAIN
512 square feet
B
EFP ENCL FRAME PORCH
104 square feet
C
OFP OPEN FRAME PORCH
72 square feet
D
WDDCK WOOD DECKS
104 square feet
Parcel Images