Elected Officials
Courts
Departments
Initiatives
Open Government
About
Login / Register
Home
/
Property & Tax Records
/
Property Records
/
Property & Tax Search
/
Parcel Profile
/
Print View
Search for Another Parcel
Parcel Profile
Historical Card
Sketches
Photos
Tax Map
Taxes
Print View
Print This Page
Address: 10228 DUNN AVE
Parcel: 28014030000500
Parcel Profile
Address
10228 | DUNN | AVE
Street Status
PAVED | SIDEWALK
School District
GIRARD SCHOOL
Acreage
0.2727
Classification
R
Land Use Code
SINGLE FAMILY
Legal Description
10228 DUNN AVE 107.5 X 113 IRR
Square Feet
1456
Topo
LEVEL
Utility
ALL PUBLIC
Zoning
Please contact your municipal zoning officer
Deed Book
1297
Deed Page
0392
2026 Tax Values
Land Value / Taxable
12,900 / 12,900.00
Building Value / Taxable
59,080 / 59,080.00
Total Value / Taxable
71,980 / 71,980.00
Clean & Green
Inactive
Homestead Status
Inactive
Farmstead Status
Inactive
Lerta Amount
0
Lerta Expiration Year
0
Residential Data
Card 1
Style
OLD STYLE
Basement
FULL
Year Built
1900
Exterior Wall
ALUMINUM/VINYL
Total Living Area
1456
Full Baths
1
Half Baths
0
Fuel Type
GAS
Heating
CENTRAL
Heating System
FORCED AIR
Stories
2.0
Total Bedrooms
3
Total Family Rooms
0
Total Rooms
7
Fireplaces
0
Other Buildings & Yards
Description
Built
Width
Length
Area
FRAME OR CB DETACHED GARAGE
1930
16
20
320
Sales History
Sale Date
Type
Price
Book / Page
Other Info
12/29/2005
LAND & BUILDING
42000
1297 / 0392
DEED
9/12/2005
LAND & BUILDING
0
1268 / 2188
WARRANTY/SURVIVORSHIP DEED
7/27/2005
LAND & BUILDING
0
1255 / 0428
SHERIFF'S DED
7/31/2003
LAND & BUILDING
0
1044 / 0748
QUIT CLAIM DEED
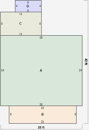
Parcel Sketches
Residential Card 1
A
MAIN
672 square feet
B
OFP OPEN FRAME PORCH
138 square feet
C
1S FR ONE STORY FRAME
112 square feet
D
EFP ENCL FRAME PORCH
36 square feet
Parcel Images
Please note:
this tab is for informational purposes only and may not show all delinquencies, see the Taxes tab for more accurate delinquent taxes due.