Elected Officials
Courts
Departments
Initiatives
Open Government
About
Login / Register
Home
/
Property & Tax Records
/
Property Records
/
Property & Tax Search
/
Parcel Profile
/
Print View
Search for Another Parcel
Parcel Profile
Historical Card
Sketches
Photos
Tax Map
Taxes
Print View
Print This Page
Address: 10156 DUNN AVE
Parcel: 28014030001100
Parcel Profile
Address
10156 | DUNN | AVE
Street Status
SEMI IMPROVED | SIDEWALK
School District
GIRARD SCHOOL
Acreage
0.2689
Classification
R
Land Use Code
SINGLE FAMILY
Legal Description
10156 DUNN AVE 61.6 X 206.65
Square Feet
1582
Topo
LEVEL
Utility
ALL PUBLIC
Zoning
Please contact your municipal zoning officer
Deed Book
0143
Deed Page
0812
2026 Tax Values
Land Value / Taxable
12,800 / 12,800.00
Building Value / Taxable
55,300 / 55,300.00
Total Value / Taxable
68,100 / 68,100.00
Clean & Green
Inactive
Homestead Status
Active
Farmstead Status
Inactive
Lerta Amount
0
Lerta Expiration Year
0
Residential Data
Card 1
Style
OLD STYLE
Basement
FULL
Year Built
1900
Exterior Wall
FRAME
Total Living Area
1582
Full Baths
1
Half Baths
1
Fuel Type
GAS
Heating
CENTRAL
Heating System
FORCED AIR
Stories
1.5
Total Bedrooms
3
Total Family Rooms
0
Total Rooms
9
Fireplaces
0
Other Buildings & Yards
Description
Built
Width
Length
Area
FRAME UTILITY SHED
1980
10
10
100
Sales History
Sale Date
Type
Price
Book / Page
Other Info
11/13/1990
0
0143 / 0812
Parcel Sketches
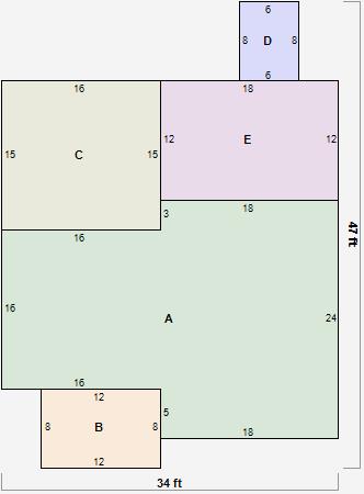
Residential Card 1
A
MAIN
688 square feet
B
WDDCK WOOD DECKS
96 square feet
C
OFP OPEN FRAME PORCH WDDCK WOOD DECKS
240 square feet
D
OFP OPEN FRAME PORCH
48 square feet
E
1S FR ONE STORY FRAME 1/2FR FRAME HALF-STORY
216 square feet
Parcel Images
Please note:
this tab is for informational purposes only and may not show all delinquencies, see the Taxes tab for more accurate delinquent taxes due.