Elected Officials
Courts
Departments
Initiatives
Open Government
About
Login / Register
Home
/
Property & Tax Records
/
Property Records
/
Property & Tax Search
/
Parcel Profile
/
Print View
Search for Another Parcel
Parcel Profile
Historical Card
Sketches
Photos
Tax Map
Taxes
Print View
Print This Page
Address: 2365 MAPLE AVE
Parcel: 28014031001800
Parcel Profile
Address
2365 | MAPLE | AVE
Street Status
PAVED | SIDEWALK
School District
GIRARD SCHOOL
Acreage
0.3924
Classification
R
Land Use Code
SINGLE FAMILY
Legal Description
2365 MAPLE AVE 164.3 X 165 IRR
Square Feet
2646
Topo
LEVEL
Utility
ALL PUBLIC
Zoning
Please contact your municipal zoning officer
Deed Book
1189
Deed Page
0675
2026 Tax Values
Land Value / Taxable
19,000 / 19,000.00
Building Value / Taxable
71,700 / 71,700.00
Total Value / Taxable
90,700 / 90,700.00
Clean & Green
Inactive
Homestead Status
Active
Farmstead Status
Inactive
Lerta Amount
0
Lerta Expiration Year
0
Residential Data
Card 1
Style
OLD STYLE
Basement
FULL
Year Built
1850
Exterior Wall
ALUMINUM/VINYL
Total Living Area
2646
Full Baths
2
Half Baths
0
Fuel Type
GAS
Heating
CENTRAL
Heating System
FORCED AIR
Stories
1.5
Total Bedrooms
4
Total Family Rooms
0
Total Rooms
10
Fireplaces
0
Other Buildings & Yards
Description
Built
Width
Length
Area
FOUR SIDE CLOSED MTL POLE BLDG
2025
30
20
600
Sales History
Sale Date
Type
Price
Book / Page
Other Info
11/12/2004
LAND & BUILDING
76000
1189 / 0675
WARRANTY/SURVIVORSHIP DEED
3/9/1954
0
0694 / 0166
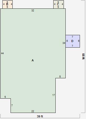
Parcel Sketches
Residential Card 1
A
MAIN
1512 square feet
B
MA STOOP/TERR MAS STOOP
20 square feet
C
MA STOOP/TERR MAS STOOP
20 square feet
D
OFP OPEN FRAME PORCH
42 square feet
Parcel Images
Please note:
this tab is for informational purposes only and may not show all delinquencies, see the Taxes tab for more accurate delinquent taxes due.