Elected Officials
Courts
Departments
Initiatives
Open Government
About
Login / Register
Home
/
Property & Tax Records
/
Property Records
/
Property & Tax Search
/
Parcel Profile
/
Print View
Search for Another Parcel
Parcel Profile
Historical Card
Sketches
Photos
Tax Map
Taxes
Print View
Print This Page
Address: 9985 SAMPSON AVE
Parcel: 28015022000200
Parcel Profile
Address
9985 | SAMPSON | AVE
Street Status
PAVED | SIDEWALK
School District
GIRARD SCHOOL
Acreage
0.1498
Classification
R
Land Use Code
SINGLE FAMILY
Legal Description
9985 SAMPSON AVE 60 X 108.74
Square Feet
1715
Topo
LEVEL
Utility
ALL PUBLIC
Zoning
Please contact your municipal zoning officer
Deed Book
0928
Deed Page
0381
2026 Tax Values
Land Value / Taxable
13,200 / 13,200.00
Building Value / Taxable
59,100 / 59,100.00
Total Value / Taxable
72,300 / 72,300.00
Clean & Green
Inactive
Homestead Status
Active
Farmstead Status
Inactive
Lerta Amount
0
Lerta Expiration Year
0
Residential Data
Card 1
Style
CONVENTIONAL
Basement
FULL
Year Built
1927
Exterior Wall
ALUMINUM/VINYL
Total Living Area
1715
Full Baths
1
Half Baths
1
Fuel Type
GAS
Heating
CENTRAL
Heating System
FORCED AIR
Stories
1.5
Total Bedrooms
3
Total Family Rooms
0
Total Rooms
6
Fireplaces
0
Other Buildings & Yards
No OBY Data Found
Sales History
Sale Date
Type
Price
Book / Page
Other Info
1/1/1965
0
0928 / 0381
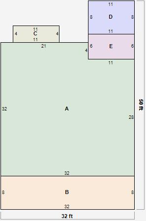
Parcel Sketches
Residential Card 1
A
MAIN
980 square feet
B
EFP ENCL FRAME PORCH
256 square feet
C
EFP ENCL FRAME PORCH
44 square feet
D
WDDCK WOOD DECKS
88 square feet
E
OFP OPEN FRAME PORCH
66 square feet
Parcel Images
Please note:
this tab is for informational purposes only and may not show all delinquencies, see the Taxes tab for more accurate delinquent taxes due.