Elected Officials
Courts
Departments
Initiatives
Open Government
About
Login / Register
Home
/
Property & Tax Records
/
Property Records
/
Property & Tax Search
/
Parcel Profile
/
Print View
Search for Another Parcel
Parcel Profile
Historical Card
Sketches
Photos
Tax Map
Taxes
Print View
Print This Page
Address: 2408 RICE AVE
Parcel: 28015022000900
Parcel Profile
Address
2408 | RICE | AVE
Street Status
PAVED | SIDEWALK
School District
GIRARD SCHOOL
Acreage
0.4217
Classification
R
Land Use Code
SINGLE FAMILY
Legal Description
2408 RICE AVE 82.5 X 224
Square Feet
1819
Topo
LEVEL
Utility
ALL PUBLIC
Zoning
Please contact your municipal zoning officer
Deed Book
1054
Deed Page
0559
2026 Tax Values
Land Value / Taxable
19,600 / 19,600.00
Building Value / Taxable
72,100 / 72,100.00
Total Value / Taxable
91,700 / 91,700.00
Clean & Green
Inactive
Homestead Status
Active
Farmstead Status
Inactive
Lerta Amount
0
Lerta Expiration Year
0
Residential Data
Card 1
Style
OLD STYLE
Basement
FULL
Year Built
1905
Exterior Wall
ALUMINUM/VINYL
Total Living Area
1819
Full Baths
1
Half Baths
2
Fuel Type
GAS
Heating
CENTRAL
Heating System
HOT WATER
Stories
2.0
Total Bedrooms
3
Total Family Rooms
0
Total Rooms
8
Fireplaces
0
Other Buildings & Yards
Description
Built
Width
Length
Area
FRAME OR CB DETACHED GARAGE
1940
16
25
400
FRAME OR CB DETACHED GARAGE
1976
21
36
756
Sales History
Sale Date
Type
Price
Book / Page
Other Info
10/11/1971
0
1054 / 0559
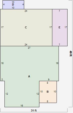
Parcel Sketches
Residential Card 1
A
MAIN
624 square feet
B
OFP OPEN FRAME PORCH
80 square feet
C
UNFIN BSMT BASEMENT UNFINISHED 1S FR ONE STORY FRAME AT FN ATTIC-FINISHED
408 square feet
D
OFP OPEN FRAME PORCH
40 square feet
E
OFP OPEN FRAME PORCH
119 square feet
Parcel Images
Please note:
this tab is for informational purposes only and may not show all delinquencies, see the Taxes tab for more accurate delinquent taxes due.