Elected Officials
Courts
Departments
Initiatives
Open Government
About
Login / Register
Home
/
Property & Tax Records
/
Property Records
/
Property & Tax Search
/
Parcel Profile
/
Print View
Search for Another Parcel
Parcel Profile
Historical Card
Sketches
Photos
Tax Map
Taxes
Print View
Print This Page
Address: 10075 SAMPSON AVE
Parcel: 28015026000200
Parcel Profile
Address
10075 | SAMPSON | AVE
Street Status
PAVED | SIDEWALK
School District
GIRARD SCHOOL
Acreage
0.2273
Classification
R
Land Use Code
SINGLE FAMILY
Legal Description
10075 SAMPSON AVE 60 X 165
Square Feet
1452
Topo
LEVEL
Utility
ALL PUBLIC
Zoning
Please contact your municipal zoning officer
Deed Book
0467
Deed Page
1941
2026 Tax Values
Land Value / Taxable
15,100 / 15,100.00
Building Value / Taxable
67,100 / 67,100.00
Total Value / Taxable
82,200 / 82,200.00
Clean & Green
Inactive
Homestead Status
Active
Farmstead Status
Inactive
Lerta Amount
0
Lerta Expiration Year
0
Residential Data
Card 1
Style
OLD STYLE
Basement
PART
Year Built
1917
Exterior Wall
ALUMINUM/VINYL
Total Living Area
1452
Full Baths
1
Half Baths
0
Fuel Type
GAS
Heating
CENTRAL A/C
Heating System
FORCED AIR
Stories
1.0
Total Bedrooms
3
Total Family Rooms
0
Total Rooms
6
Fireplaces
1
Other Buildings & Yards
Description
Built
Width
Length
Area
FRAME OR CB DETACHED GARAGE
1950
24
28
672
ONE SIDE OPEN WD POLE BLDG
2005
18
24
432
Sales History
Sale Date
Type
Price
Book / Page
Other Info
10/24/1996
LAND & BUILDING
63000
0467 / 1941
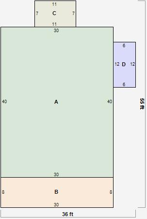
Parcel Sketches
Residential Card 1
A
MAIN
1200 square feet
B
OFP OPEN FRAME PORCH 1/2FR FRAME HALF-STORY
240 square feet
C
EFP ENCL FRAME PORCH
77 square feet
D
1S FR ONE STORY FRAME
72 square feet
Parcel Images
Please note:
this tab is for informational purposes only and may not show all delinquencies, see the Taxes tab for more accurate delinquent taxes due.