Elected Officials
Courts
Departments
Initiatives
Open Government
About
Login / Register
Home
/
Property & Tax Records
/
Property Records
/
Property & Tax Search
/
Parcel Profile
/
Print View
Search for Another Parcel
Parcel Profile
Historical Card
Sketches
Photos
Tax Map
Taxes
Print View
Print This Page
Address: 2451 LAKE ST
Parcel: 28015026003100
Parcel Profile
Address
2451 | LAKE | ST
Street Status
PAVED | SIDEWALK
School District
GIRARD SCHOOL
Acreage
0.3012
Classification
R
Land Use Code
SINGLE FAMILY
Legal Description
2451 LAKE ST 82.5 X 160
Square Feet
1740
Topo
LEVEL
Utility
ALL PUBLIC
Zoning
Please contact your municipal zoning officer
Deed Book
2014
Deed Page
006113
2026 Tax Values
Land Value / Taxable
16,800 / 16,800.00
Building Value / Taxable
59,100 / 59,100.00
Total Value / Taxable
75,900 / 75,900.00
Clean & Green
Inactive
Homestead Status
Inactive
Farmstead Status
Inactive
Lerta Amount
0
Lerta Expiration Year
0
Residential Data
Card 1
Style
OLD STYLE
Basement
FULL
Year Built
1917
Exterior Wall
ALUMINUM/VINYL
Total Living Area
1740
Full Baths
2
Half Baths
0
Fuel Type
GAS
Heating
CENTRAL
Heating System
HOT WATER
Stories
2.0
Total Bedrooms
3
Total Family Rooms
0
Total Rooms
8
Fireplaces
0
Other Buildings & Yards
Description
Built
Width
Length
Area
FRAME OR CB DETACHED GARAGE
1947
24
36
864
Sales History
Sale Date
Type
Price
Book / Page
Other Info
4/2/2014
LAND & BUILDING
129900
2014 / 006113
DEED
12/19/2013
LAND & BUILDING
37000
2013 / 032574
DEED
1/18/1983
0
1483 / 0052
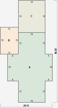
Parcel Sketches
Residential Card 1
A
MAIN
735 square feet
B
EFP ENCL FRAME PORCH
150 square feet
C
1S FR ONE STORY FRAME
270 square feet
Parcel Images
Please note:
this tab is for informational purposes only and may not show all delinquencies, see the Taxes tab for more accurate delinquent taxes due.