Elected Officials
Courts
Departments
Initiatives
Open Government
About
Login / Register
Home
/
Property & Tax Records
/
Property Records
/
Property & Tax Search
/
Parcel Profile
/
Print View
Search for Another Parcel
Parcel Profile
Historical Card
Sketches
Photos
Tax Map
Taxes
Print View
Print This Page
Address: 442 HARVEY AVE
Parcel: 29006015001400
Parcel Profile
Address
442 | HARVEY | AVE
Street Status
PAVED
School District
IROQUOIS SCHOOL
Acreage
0.1148
Classification
R
Land Use Code
SINGLE FAMILY
Legal Description
442 HARVEY AVE 40X125
Square Feet
1008
Topo
LEVEL
Utility
ALL PUBLIC
Zoning
Please contact your municipal zoning officer
Deed Book
2023
Deed Page
015887
2025 Tax Values
Land Value / Taxable
17,800 / 17,800.00
Building Value / Taxable
37,200 / 37,200.00
Total Value / Taxable
55,000 / 55,000.00
Clean & Green
Inactive
Homestead Status
Inactive
Farmstead Status
Inactive
Lerta Amount
0
Lerta Expiration Year
0
Residential Data
Card 1
Style
CONVENTIONAL
Basement
FULL
Year Built
1940
Exterior Wall
COMPOSITION
Total Living Area
1008
Full Baths
1
Half Baths
0
Fuel Type
GAS
Heating
CENTRAL
Heating System
FORCED AIR
Stories
2.0
Total Bedrooms
3
Total Family Rooms
0
Total Rooms
6
Fireplaces
0
Other Buildings & Yards
Description
Built
Width
Length
Area
FRAME OR CB DETACHED GARAGE
1940
14
22
308
Sales History
Sale Date
Type
Price
Book / Page
Other Info
9/20/2023
LAND & BUILDING
127000
2023 / 015887
DEED
5/28/2009
LAND & BUILDING
55000
1564 / 2091
DEED
2/14/2002
LAND & BUILDING
49900
853 / 2037
DEED
12/11/1997
LAND & BUILDING
39500
534 / 31
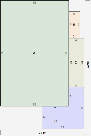
Parcel Sketches
Residential Card 1
A
MAIN
504 square feet
B
FR UT FRAME UTILITY BUILDING
21 square feet
C
MA STOOP/TERR MAS STOOP CANPY CANOPY
52 square feet
D
OFP OPEN FRAME PORCH
86 square feet
Parcel Images