Elected Officials
Courts
Departments
Initiatives
Open Government
About
Login / Register
Home
/
Property & Tax Records
/
Property Records
/
Property & Tax Search
/
Parcel Profile
/
Print View
Search for Another Parcel
Parcel Profile
Historical Card
Sketches
Photos
Tax Map
Taxes
Print View
Print This Page
Address: 3707 IROQUOIS AVE
Parcel: 29009035000200
Parcel Profile
Address
3707 | IROQUOIS | AVE
Street Status
PAVED | SIDEWALK
School District
IROQUOIS SCHOOL
Acreage
0.1826
Classification
R
Land Use Code
SINGLE FAMILY
Legal Description
3707 IROQUOIS AVE LOTS 21 & 22 100 X 92.87 IRR
Square Feet
1354
Topo
LEVEL
Utility
ALL PUBLIC
Zoning
Please contact your municipal zoning officer
Deed Book
2014
Deed Page
025730
2026 Tax Values
Land Value / Taxable
21,200 / 21,200.00
Building Value / Taxable
89,500 / 89,500.00
Total Value / Taxable
110,700 / 110,700.00
Clean & Green
Inactive
Homestead Status
Active
Farmstead Status
Inactive
Lerta Amount
0
Lerta Expiration Year
0
Residential Data
Card 1
Style
RANCH
Basement
FULL
Year Built
1950
Exterior Wall
BRICK
Total Living Area
1354
Full Baths
1
Half Baths
0
Fuel Type
GAS
Heating
CENTRAL A/C
Heating System
FORCED AIR
Stories
1.0
Total Bedrooms
3
Total Family Rooms
0
Total Rooms
6
Fireplaces
0
Other Buildings & Yards
No OBY Data Found
Sales History
Sale Date
Type
Price
Book / Page
Other Info
12/1/2014
LAND & BUILDING
119000
2014 / 025730
SPECIAL WARRANTY DEED
8/5/2008
LAND & BUILDING
118000
1513 / 0762
DEED
4/8/1994
0
0328 / 0684
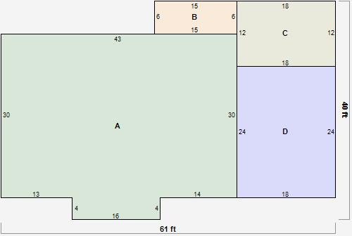
Parcel Sketches
Residential Card 1
A
MAIN
1354 square feet
B
MA_PT CONC/MAS PATIO
90 square feet
C
OFP OPEN FRAME PORCH
216 square feet
D
MG/BG MASONRY/BRICK GARAGE
432 square feet
Parcel Images
Please note:
this tab is for informational purposes only and may not show all delinquencies, see the Taxes tab for more accurate delinquent taxes due.