Elected Officials
Courts
Departments
Initiatives
Open Government
About
Login / Register
Home
/
Property & Tax Records
/
Property Records
/
Property & Tax Search
/
Parcel Profile
/
Print View
Search for Another Parcel
Parcel Profile
Historical Card
Sketches
Photos
Tax Map
Taxes
Print View
Print This Page
Address: 3809 IROQUOIS AVE
Parcel: 29009035000700
Parcel Profile
Address
3809 | IROQUOIS | AVE
Street Status
PAVED | SIDEWALK
School District
IROQUOIS SCHOOL
Acreage
0.2502
Classification
R
Land Use Code
SINGLE FAMILY
Legal Description
3809 IROQUOIS AVE LOT 16 50 X 112.2 IRR
Square Feet
1350
Topo
LEVEL
Utility
ALL PUBLIC
Zoning
Please contact your municipal zoning officer
Deed Book
2022
Deed Page
009697
2026 Tax Values
Land Value / Taxable
22,400 / 22,400.00
Building Value / Taxable
69,690 / 69,690.00
Total Value / Taxable
92,090 / 92,090.00
Clean & Green
Inactive
Homestead Status
Active
Farmstead Status
Inactive
Lerta Amount
0
Lerta Expiration Year
0
Residential Data
Card 1
Style
CONVENTIONAL
Basement
FULL
Year Built
1948
Exterior Wall
ALUMINUM/VINYL
Total Living Area
1350
Full Baths
1
Half Baths
1
Fuel Type
GAS
Heating
CENTRAL
Heating System
FORCED AIR
Stories
1.0
Total Bedrooms
3
Total Family Rooms
0
Total Rooms
6
Fireplaces
0
Other Buildings & Yards
Description
Built
Width
Length
Area
FRAME OR CB DETACHED GARAGE
1948
14
22
308
Sales History
Sale Date
Type
Price
Book / Page
Other Info
5/6/2022
LAND & BUILDING
0
2022 / 009697
QUIT/CLAIM SURVIVORSHIP
9/15/2016
LAND & BUILDING
55500
2016 / 020015
SPECIAL WARRANTY DEED
2/12/2016
LAND & BUILDING
6621
2016 / 002914
SHERIFF'S DED
7/14/2003
LAND & BUILDING
0
1035 / 1242
QUIT CLAIM DEED
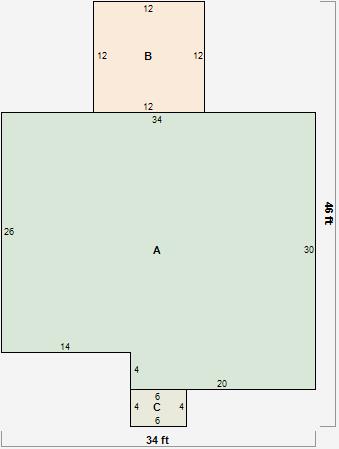
Parcel Sketches
Residential Card 1
A
MAIN
964 square feet
B
OFP OPEN FRAME PORCH
144 square feet
C
MA STOOP/TERR MAS STOOP
24 square feet
Parcel Images
Please note:
this tab is for informational purposes only and may not show all delinquencies, see the Taxes tab for more accurate delinquent taxes due.