Elected Officials
Courts
Departments
Initiatives
Open Government
About
Login / Register
Home
/
Property & Tax Records
/
Property Records
/
Property & Tax Search
/
Parcel Profile
/
Print View
Search for Another Parcel
Parcel Profile
Historical Card
Sketches
Photos
Tax Map
Taxes
Print View
Print This Page
Address: 735 NAPIER AVE
Parcel: 29009035001900
Parcel Profile
Address
735 | NAPIER | AVE
Street Status
PAVED
School District
IROQUOIS SCHOOL
Acreage
0.2149
Classification
R
Land Use Code
SINGLE FAMILY
Legal Description
735 NAPIER AVE LOT 29 45 X 107.18 IRR
Square Feet
1092
Topo
LEVEL
Utility
ALL PUBLIC
Zoning
Please contact your municipal zoning officer
Deed Book
2025
Deed Page
013388
2026 Tax Values
Land Value / Taxable
21,700 / 21,700.00
Building Value / Taxable
50,300 / 50,300.00
Total Value / Taxable
72,000 / 72,000.00
Clean & Green
Inactive
Homestead Status
Active
Farmstead Status
Inactive
Lerta Amount
0
Lerta Expiration Year
0
Residential Data
Card 1
Style
RANCH
Basement
NONE
Year Built
1953
Exterior Wall
ALUMINUM/VINYL
Total Living Area
1092
Full Baths
1
Half Baths
0
Fuel Type
GAS
Heating
CENTRAL
Heating System
FORCED AIR
Stories
1.0
Total Bedrooms
2
Total Family Rooms
0
Total Rooms
5
Fireplaces
0
Other Buildings & Yards
No OBY Data Found
Sales History
Sale Date
Type
Price
Book / Page
Other Info
8/8/2025
LAND & BUILDING
90000
2025 / 013388
FIDUCIARY DEED
9/29/1994
0
0356 / 0086
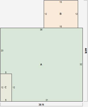
Parcel Sketches
Residential Card 1
A
MAIN
1092 square feet
B
MA_PT CONC/MAS PATIO
180 square feet
C
OFP OPEN FRAME PORCH
60 square feet
Parcel Images