Elected Officials
Courts
Departments
Initiatives
Open Government
About
Login / Register
Home
/
Property & Tax Records
/
Property Records
/
Property & Tax Search
/
Parcel Profile
/
Print View
Search for Another Parcel
Parcel Profile
Historical Card
Sketches
Photos
Tax Map
Taxes
Print View
Print This Page
Address: 3804 MORSE AVE
Parcel: 29009036001200
Parcel Profile
Address
3804 | MORSE | AVE
Street Status
PAVED | SIDEWALK
School District
IROQUOIS SCHOOL
Acreage
0.2927
Classification
R
Land Use Code
SINGLE FAMILY
Legal Description
3804 MORSE AVE 154.18X164.56IR
Square Feet
2470
Topo
LEVEL
Utility
ALL PUBLIC
Zoning
Please contact your municipal zoning officer
Deed Book
2017
Deed Page
002777
2026 Tax Values
Land Value / Taxable
23,100 / 23,100.00
Building Value / Taxable
130,500 / 130,500.00
Total Value / Taxable
153,600 / 153,600.00
Clean & Green
Inactive
Homestead Status
Active
Farmstead Status
Inactive
Lerta Amount
0
Lerta Expiration Year
0
Residential Data
Card 1
Style
OLD STYLE
Basement
FULL
Year Built
1917
Exterior Wall
BRICK
Total Living Area
2470
Full Baths
1
Half Baths
1
Fuel Type
GAS
Heating
CENTRAL
Heating System
FORCED AIR
Stories
2.0
Total Bedrooms
4
Total Family Rooms
1
Total Rooms
10
Fireplaces
2
Other Buildings & Yards
Description
Built
Width
Length
Area
FRAME OR CB DETACHED GARAGE
2003
20
34
680
Sales History
Sale Date
Type
Price
Book / Page
Other Info
2/9/2017
LAND & BUILDING
165000
2017 / 002777
SPECIAL WARRANTY DEED
3/3/1999
0
0621 / 0602
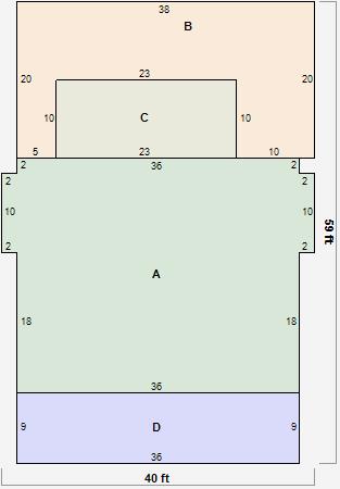
Parcel Sketches
Residential Card 1
A
MAIN
1120 square feet
B
WDDCK WOOD DECKS
530 square feet
C
1S FR ONE STORY FRAME
230 square feet
D
OFP OPEN FRAME PORCH
324 square feet
Parcel Images
Please note:
this tab is for informational purposes only and may not show all delinquencies, see the Taxes tab for more accurate delinquent taxes due.