Elected Officials
Courts
Departments
Initiatives
Open Government
About
Login / Register
Home
/
Property & Tax Records
/
Property Records
/
Property & Tax Search
/
Parcel Profile
/
Print View
Search for Another Parcel
Parcel Profile
Historical Card
Sketches
Photos
Tax Map
Taxes
Print View
Print This Page
Address: 810 RANKINE AVE
Parcel: 29010047000300
Parcel Profile
Address
810 | RANKINE | AVE
Street Status
PAVED | SIDEWALK
School District
IROQUOIS SCHOOL
Acreage
0.1722
Classification
R
Land Use Code
SINGLE FAMILY
Legal Description
810 RANKINE AVE 54X125
Square Feet
1936
Topo
LEVEL
Utility
ALL PUBLIC
Zoning
Please contact your municipal zoning officer
Deed Book
0839
Deed Page
0466
2026 Tax Values
Land Value / Taxable
21,000 / 21,000.00
Building Value / Taxable
81,500 / 81,500.00
Total Value / Taxable
102,500 / 102,500.00
Clean & Green
Inactive
Homestead Status
Active
Farmstead Status
Inactive
Lerta Amount
0
Lerta Expiration Year
0
Residential Data
Card 1
Style
OLD STYLE
Basement
FULL
Year Built
1920
Exterior Wall
ALUMINUM/VINYL
Total Living Area
1936
Full Baths
1
Half Baths
0
Fuel Type
GAS
Heating
CENTRAL
Heating System
FORCED AIR
Stories
2.0
Total Bedrooms
4
Total Family Rooms
0
Total Rooms
6
Fireplaces
0
Other Buildings & Yards
Description
Built
Width
Length
Area
FRAME OR CB DETACHED GARAGE
1970
12
20
240
Sales History
Sale Date
Type
Price
Book / Page
Other Info
12/28/2001
LAND & BUILDING
0
0839 / 0466
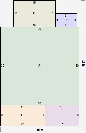
Parcel Sketches
Residential Card 1
A
MAIN
900 square feet
B
OFP OPEN FRAME PORCH 1S FR ONE STORY FRAME
136 square feet
C
OFP OPEN FRAME PORCH
160 square feet
D
EFP ENCL FRAME PORCH
40 square feet
E
OFP OPEN FRAME PORCH
104 square feet
Parcel Images
Please note:
this tab is for informational purposes only and may not show all delinquencies, see the Taxes tab for more accurate delinquent taxes due.