Elected Officials
Courts
Departments
Initiatives
Open Government
About
Login / Register
Home
/
Property & Tax Records
/
Property Records
/
Property & Tax Search
/
Parcel Profile
/
Print View
Search for Another Parcel
Parcel Profile
Historical Card
Sketches
Photos
Tax Map
Taxes
Print View
Print This Page
Address: 3922 24 MAIN ST
Parcel: 29010047001700
Parcel Profile
Address
3922 | 24 | MAIN | ST
Street Status
PAVED
School District
IROQUOIS SCHOOL
Acreage
0.1116
Classification
C
Land Use Code
RESTAURANTS, STORES (RETAIL)
Legal Description
3922 24 MAIN ST 45 X 108
Square Feet
5928
Topo
LEVEL
Utility
ALL PUBLIC
Zoning
Please contact your municipal zoning officer
Deed Book
2012
Deed Page
009864
2026 Tax Values
Land Value / Taxable
14,600 / 14,600.00
Building Value / Taxable
105,700 / 105,700.00
Total Value / Taxable
120,300 / 120,300.00
Clean & Green
Inactive
Homestead Status
Inactive
Farmstead Status
Inactive
Lerta Amount
0
Lerta Expiration Year
0
Commercial Data
Card 1
MIXED RES/COMM
Business Living Area - 5928
Year Built - 1920
Improvement Name - EASTSIDE TAVERN/APT
Value - 125130
Other Buildings & Yards
No OBY Data Found
Sales History
Sale Date
Type
Price
Book / Page
Other Info
4/20/2012
LAND & BUILDING
125000
2012 / 009864
SPECIAL WARRANTY DEED
11/21/2003
LAND & BUILDING
65000
1088 / 1596
WARRANTY/SURVIVORSHIP DEED
3/23/2000
LAND & BUILDING
50000
693 / 1526
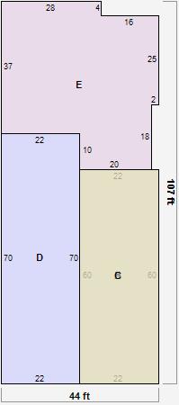
Parcel Sketches
Commercial Card 1
A
MAIN
1320 square feet
B
MAIN
1320 square feet
C
MAIN
1320 square feet
D
MAIN
1540 square feet
E
MAIN
1748 square feet
Parcel Images
Please note:
this tab is for informational purposes only and may not show all delinquencies, see the Taxes tab for more accurate delinquent taxes due.