Elected Officials
Courts
Departments
Initiatives
Open Government
About
Login / Register
Home
/
Property & Tax Records
/
Property Records
/
Property & Tax Search
/
Parcel Profile
/
Print View
Search for Another Parcel
Parcel Profile
Historical Card
Sketches
Photos
Tax Map
Taxes
Print View
Print This Page
Address: 525 NOBEL AVE
Parcel: 29012020001200
Parcel Profile
Address
525 | NOBEL | AVE
Street Status
PAVED | SIDEWALK
School District
IROQUOIS SCHOOL
Acreage
0.1525
Classification
R
Land Use Code
SINGLE FAMILY
Legal Description
525 NOBEL AVE 48X120IRR
Square Feet
2216
Topo
LEVEL
Utility
ALL PUBLIC
Zoning
Please contact your municipal zoning officer
Deed Book
0711
Deed Page
0619
2026 Tax Values
Land Value / Taxable
20,700 / 20,700.00
Building Value / Taxable
105,900 / 105,900.00
Total Value / Taxable
126,600 / 126,600.00
Clean & Green
Inactive
Homestead Status
Active
Farmstead Status
Inactive
Lerta Amount
0
Lerta Expiration Year
0
Residential Data
Card 1
Style
CAPE
Basement
FULL
Year Built
1938
Exterior Wall
BRICK
Total Living Area
2216
Full Baths
2
Half Baths
0
Fuel Type
GAS
Heating
CENTRAL A/C
Heating System
FORCED AIR
Stories
1.5
Total Bedrooms
3
Total Family Rooms
0
Total Rooms
8
Fireplaces
2
Other Buildings & Yards
Description
Built
Width
Length
Area
FRAME OR CB DETACHED GARAGE
1938
20
22
440
Sales History
Sale Date
Type
Price
Book / Page
Other Info
6/23/2000
LAND & BUILDING
127000
0711 / 0619
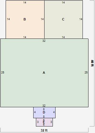
Parcel Sketches
Residential Card 1
A
MAIN
800 square feet
B
1S FR ONE STORY FRAME 1S FR ONE STORY FRAME
196 square feet
C
1S FR ONE STORY FRAME 1S FR ONE STORY FRAME
196 square feet
D
1SMAS MASONRY
32 square feet
E
MA STOOP/TERR MAS STOOP
18 square feet
Parcel Images
Please note:
this tab is for informational purposes only and may not show all delinquencies, see the Taxes tab for more accurate delinquent taxes due.