Elected Officials
Courts
Departments
Initiatives
Open Government
About
Login / Register
Home
/
Property & Tax Records
/
Property Records
/
Property & Tax Search
/
Parcel Profile
/
Print View
Search for Another Parcel
Parcel Profile
Historical Card
Sketches
Photos
Tax Map
Taxes
Print View
Print This Page
Address: 591 RANKINE AVE
Parcel: 29012022001100
Parcel Profile
Address
591 | RANKINE | AVE
Street Status
PAVED | SIDEWALK
School District
IROQUOIS SCHOOL
Acreage
0.3444
Classification
R
Land Use Code
SINGLE FAMILY
Legal Description
591 RANKINE AVE 150X125IR
Square Feet
3237
Topo
LEVEL
Utility
ALL PUBLIC
Zoning
Please contact your municipal zoning officer
Deed Book
1075
Deed Page
0559
2026 Tax Values
Land Value / Taxable
24,000 / 24,000.00
Building Value / Taxable
149,600 / 149,600.00
Total Value / Taxable
173,600 / 173,600.00
Clean & Green
Inactive
Homestead Status
Active
Farmstead Status
Inactive
Lerta Amount
0
Lerta Expiration Year
0
Residential Data
Card 1
Style
OLD STYLE
Basement
FULL
Year Built
1930
Exterior Wall
BRICK
Total Living Area
3237
Full Baths
2
Half Baths
1
Fuel Type
GAS
Heating
CENTRAL
Heating System
FORCED AIR
Stories
2.0
Total Bedrooms
3
Total Family Rooms
0
Total Rooms
10
Fireplaces
1
Other Buildings & Yards
No OBY Data Found
Sales History
Sale Date
Type
Price
Book / Page
Other Info
8/11/1972
0
1075 / 0559
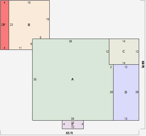
Parcel Sketches
Residential Card 1
A
MAIN
1420 square feet
B
MG/BG MASONRY/BRICK GARAGE 1S FR ONE STORY FRAME
397 square feet
C
ST_PT STONE OR TILE PATIO
168 square feet
D
OMP OPEN MASONRY PORCH
312 square feet
E
MA STOOP/TERR MAS STOOP
40 square feet
F
MG/BG MASONRY/BRICK GARAGE
92 square feet
Parcel Images
Please note:
this tab is for informational purposes only and may not show all delinquencies, see the Taxes tab for more accurate delinquent taxes due.