Elected Officials
Courts
Departments
Initiatives
Open Government
About
Login / Register
Home
/
Property & Tax Records
/
Property Records
/
Property & Tax Search
/
Parcel Profile
/
Print View
Search for Another Parcel
Parcel Profile
Historical Card
Sketches
Photos
Tax Map
Taxes
Print View
Print This Page
Address: 4103 E LAKE RD
Parcel: 29012023000100
Parcel Profile
Address
4103 | E | LAKE | RD
Street Status
PAVED | SIDEWALK
School District
IROQUOIS SCHOOL
Acreage
0.1851
Classification
R
Land Use Code
SINGLE FAMILY
Legal Description
4103 E LAKE RD 46.13X105.79IRR
Square Feet
1240
Topo
LEVEL
Utility
ALL PUBLIC
Zoning
Please contact your municipal zoning officer
Deed Book
0363
Deed Page
1751
2026 Tax Values
Land Value / Taxable
21,200 / 21,200.00
Building Value / Taxable
66,710 / 66,710.00
Total Value / Taxable
87,910 / 87,910.00
Clean & Green
Inactive
Homestead Status
Active
Farmstead Status
Inactive
Lerta Amount
0
Lerta Expiration Year
0
Residential Data
Card 1
Style
CAPE
Basement
FULL
Year Built
1930
Exterior Wall
ALUMINUM/VINYL
Total Living Area
1240
Full Baths
1
Half Baths
1
Fuel Type
GAS
Heating
CENTRAL A/C
Heating System
FORCED AIR
Stories
1.0
Total Bedrooms
3
Total Family Rooms
0
Total Rooms
7
Fireplaces
0
Other Buildings & Yards
No OBY Data Found
Sales History
Sale Date
Type
Price
Book / Page
Other Info
11/22/1994
0
0363 / 1751
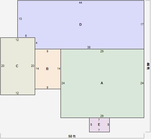
Parcel Sketches
Residential Card 1
A
MAIN
696 square feet
B
1S FR ONE STORY FRAME
126 square feet
C
FR GR FRAME GARAGE
240 square feet
D
MA_PT CONC/MAS PATIO
724 square feet
E
1S FR ONE STORY FRAME
35 square feet
Parcel Images
Please note:
this tab is for informational purposes only and may not show all delinquencies, see the Taxes tab for more accurate delinquent taxes due.