Elected Officials
Courts
Departments
Initiatives
Open Government
About
Login / Register
Home
/
Property & Tax Records
/
Property Records
/
Property & Tax Search
/
Parcel Profile
/
Print View
Search for Another Parcel
Parcel Profile
Historical Card
Sketches
Photos
Tax Map
Taxes
Print View
Print This Page
Address: 4111 E LAKE RD
Parcel: 29012023000200
Parcel Profile
Address
4111 | E | LAKE | RD
Street Status
PAVED | SIDEWALK
School District
IROQUOIS SCHOOL
Acreage
0.1936
Classification
R
Land Use Code
SINGLE FAMILY
Legal Description
4111 E LAKE RD 63.48X127.15
Square Feet
1756
Topo
LEVEL
Utility
ALL PUBLIC
Zoning
Please contact your municipal zoning officer
Deed Book
0096
Deed Page
1113
2026 Tax Values
Land Value / Taxable
21,400 / 21,400.00
Building Value / Taxable
72,820 / 72,820.00
Total Value / Taxable
94,220 / 94,220.00
Clean & Green
Inactive
Homestead Status
Active
Farmstead Status
Inactive
Lerta Amount
0
Lerta Expiration Year
0
Residential Data
Card 1
Style
CAPE
Basement
FULL
Year Built
1930
Exterior Wall
ALUMINUM/VINYL
Total Living Area
1756
Full Baths
1
Half Baths
0
Fuel Type
GAS
Heating
CENTRAL
Heating System
FORCED AIR
Stories
1.0
Total Bedrooms
3
Total Family Rooms
0
Total Rooms
7
Fireplaces
0
Other Buildings & Yards
Description
Built
Width
Length
Area
FRAME OR CB DETACHED GARAGE
1930
26
22
572
Sales History
Sale Date
Type
Price
Book / Page
Other Info
8/22/1989
0
0096 / 1113
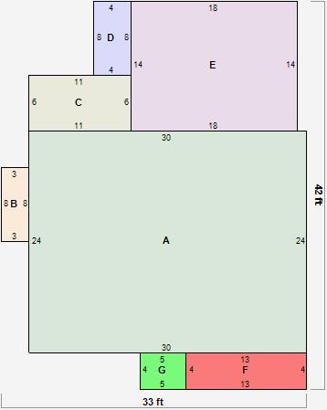
Parcel Sketches
Residential Card 1
A
MAIN
720 square feet
B
FROVR FRAME OVERHANG
24 square feet
C
1S FR ONE STORY FRAME 1S FR ONE STORY FRAME
66 square feet
D
MA STOOP/TERR MAS STOOP
32 square feet
E
1S FR ONE STORY FRAME
252 square feet
F
1S FR ONE STORY FRAME
52 square feet
G
MA STOOP/TERR MAS STOOP
20 square feet
Parcel Images
Please note:
this tab is for informational purposes only and may not show all delinquencies, see the Taxes tab for more accurate delinquent taxes due.