Elected Officials
Courts
Departments
Initiatives
Open Government
About
Login / Register
Home
/
Property & Tax Records
/
Property Records
/
Property & Tax Search
/
Parcel Profile
/
Print View
Search for Another Parcel
Parcel Profile
Historical Card
Sketches
Photos
Tax Map
Taxes
Print View
Print This Page
Address: 670 SMITHSON AVE
Parcel: 29012030000800
Parcel Profile
Address
670 | SMITHSON | AVE
Street Status
PAVED | SIDEWALK
School District
IROQUOIS SCHOOL
Acreage
0.1291
Classification
R
Land Use Code
SINGLE FAMILY
Legal Description
670 SMITHSON AVE 45 X 125
Square Feet
1092
Topo
LEVEL
Utility
ALL PUBLIC
Zoning
Please contact your municipal zoning officer
Deed Book
2020
Deed Page
020113
2026 Tax Values
Land Value / Taxable
20,300 / 20,300.00
Building Value / Taxable
75,000 / 75,000.00
Total Value / Taxable
95,300 / 95,300.00
Clean & Green
Inactive
Homestead Status
Inactive
Farmstead Status
Inactive
Lerta Amount
0
Lerta Expiration Year
0
Residential Data
Card 1
Style
CAPE
Basement
FULL
Year Built
1927
Exterior Wall
ALUMINUM/VINYL
Total Living Area
1092
Full Baths
1
Half Baths
0
Fuel Type
GAS
Heating
CENTRAL A/C
Heating System
FORCED AIR
Stories
1.0
Total Bedrooms
3
Total Family Rooms
0
Total Rooms
6
Fireplaces
0
Other Buildings & Yards
No OBY Data Found
Sales History
Sale Date
Type
Price
Book / Page
Other Info
9/30/2020
LAND & BUILDING
118000
2020 / 020113
DEED
11/25/2014
LAND & BUILDING
93000
2014 / 025527
SPECIAL WARRANTY DEED
1/27/2004
LAND & BUILDING
88000
1103 / 0934
WARRANTY/SURVIVORSHIP DEED
4/22/1994
0
0330 / 1229
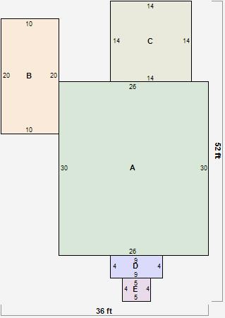
Parcel Sketches
Residential Card 1
A
MAIN
780 square feet
B
FR GR FRAME GARAGE
200 square feet
C
ST_PT STONE OR TILE PATIO
196 square feet
D
EFP ENCL FRAME PORCH
36 square feet
E
MA STOOP/TERR MAS STOOP
20 square feet
Parcel Images
Please note:
this tab is for informational purposes only and may not show all delinquencies, see the Taxes tab for more accurate delinquent taxes due.