Elected Officials
Courts
Departments
Initiatives
Open Government
About
Login / Register
Home
/
Property & Tax Records
/
Property Records
/
Property & Tax Search
/
Parcel Profile
/
Print View
Search for Another Parcel
Parcel Profile
Historical Card
Sketches
Photos
Tax Map
Taxes
Print View
Print This Page
Address: 668 SILLIMAN AVE
Parcel: 29012031000300
Parcel Profile
Address
668 | SILLIMAN | AVE
Street Status
PAVED | SIDEWALK
School District
IROQUOIS SCHOOL
Acreage
0.1148
Classification
R
Land Use Code
SINGLE FAMILY
Legal Description
668 SILLIMAN AVE 40X125
Square Feet
1848
Topo
LEVEL
Utility
ALL PUBLIC
Zoning
Please contact your municipal zoning officer
Deed Book
1420
Deed Page
1258
2026 Tax Values
Land Value / Taxable
20,000 / 20,000.00
Building Value / Taxable
42,400 / 42,400.00
Total Value / Taxable
62,400 / 62,400.00
Clean & Green
Inactive
Homestead Status
Active
Farmstead Status
Inactive
Lerta Amount
0
Lerta Expiration Year
0
Residential Data
Card 1
Style
OLD STYLE
Basement
FULL
Year Built
1930
Exterior Wall
COMPOSITION
Total Living Area
1848
Full Baths
2
Half Baths
0
Fuel Type
GAS
Heating
CENTRAL
Heating System
FORCED AIR
Stories
2.0
Total Bedrooms
4
Total Family Rooms
0
Total Rooms
9
Fireplaces
0
Other Buildings & Yards
Description
Built
Width
Length
Area
FRAME OR CB DETACHED GARAGE
1930
12
20
240
Sales History
Sale Date
Type
Price
Book / Page
Other Info
6/1/2007
LAND & BUILDING
59500
1420 / 1258
DEED
12/12/2006
LAND & BUILDING
0
1382 / 0626
SHERIFF'S DED
5/7/2004
LAND & BUILDING
0
1133 / 0028
DEED
4/30/2001
LAND & BUILDING
62000
769 / 2272
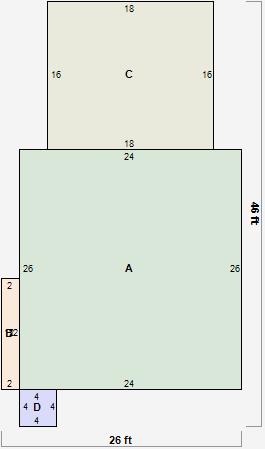
Parcel Sketches
Residential Card 1
A
MAIN
624 square feet
B
FROVR FRAME OVERHANG
24 square feet
C
1SMAS MASONRY 1SMAS MASONRY
288 square feet
D
MA STOOP/TERR MAS STOOP
16 square feet
Parcel Images
Please note:
this tab is for informational purposes only and may not show all delinquencies, see the Taxes tab for more accurate delinquent taxes due.