Elected Officials
Courts
Departments
Initiatives
Open Government
About
Login / Register
Home
/
Property & Tax Records
/
Property Records
/
Property & Tax Search
/
Parcel Profile
/
Print View
Search for Another Parcel
Parcel Profile
Historical Card
Sketches
Photos
Tax Map
Taxes
Print View
Print This Page
Address: 667 RANKINE AVE
Parcel: 29012031001200
Parcel Profile
Address
667 | RANKINE | AVE
Street Status
PAVED | SIDEWALK
School District
IROQUOIS SCHOOL
Acreage
0.1722
Classification
R
Land Use Code
SINGLE FAMILY
Legal Description
667 RANKINE AVE 60X125
Square Feet
1238
Topo
LEVEL
Utility
ALL PUBLIC
Zoning
Please contact your municipal zoning officer
Deed Book
2016
Deed Page
003153
2026 Tax Values
Land Value / Taxable
21,000 / 21,000.00
Building Value / Taxable
69,380 / 69,380.00
Total Value / Taxable
90,380 / 90,380.00
Clean & Green
Inactive
Homestead Status
Active
Farmstead Status
Inactive
Lerta Amount
0
Lerta Expiration Year
0
Residential Data
Card 1
Style
CAPE
Basement
FULL
Year Built
1935
Exterior Wall
ALUMINUM/VINYL
Total Living Area
1238
Full Baths
1
Half Baths
0
Fuel Type
GAS
Heating
CENTRAL A/C
Heating System
FORCED AIR
Stories
1.0
Total Bedrooms
3
Total Family Rooms
0
Total Rooms
6
Fireplaces
0
Other Buildings & Yards
Description
Built
Width
Length
Area
FRAME UTILITY SHED
2004
8
8
64
Sales History
Sale Date
Type
Price
Book / Page
Other Info
2/16/2016
LAND & BUILDING
100000
2016 / 003153
SPECIAL WARRANTY DEED
11/18/1987
0
0034 / 0420
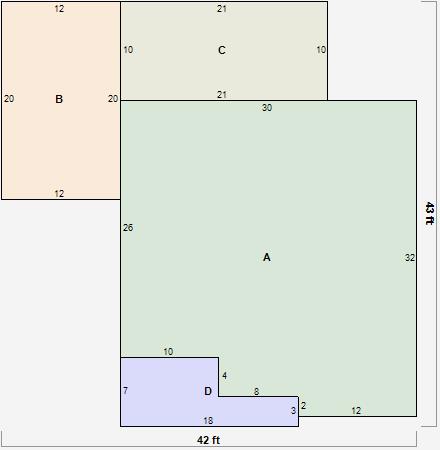
Parcel Sketches
Residential Card 1
A
MAIN
884 square feet
B
FR GR FRAME GARAGE
240 square feet
C
MA_PT CONC/MAS PATIO
210 square feet
D
OFP OPEN FRAME PORCH
94 square feet
Parcel Images