Elected Officials
Courts
Departments
Initiatives
Open Government
About
Login / Register
Home
/
Property & Tax Records
/
Property Records
/
Property & Tax Search
/
Parcel Profile
/
Print View
Search for Another Parcel
Parcel Profile
Historical Card
Sketches
Photos
Tax Map
Taxes
Print View
Print This Page
Address: 635 HOWE AVE
Parcel: 29012032001600
Parcel Profile
Address
635 | HOWE | AVE
Street Status
PAVED | SIDEWALK
School District
IROQUOIS SCHOOL
Acreage
0.3811
Classification
R
Land Use Code
SINGLE FAMILY
Legal Description
635 HOWE AVE 98X155IRR
Square Feet
1266
Topo
LEVEL
Utility
ALL PUBLIC
Zoning
Please contact your municipal zoning officer
Deed Book
2025
Deed Page
002724
2026 Tax Values
Land Value / Taxable
24,600 / 24,600.00
Building Value / Taxable
74,110 / 74,110.00
Total Value / Taxable
98,710 / 98,710.00
Clean & Green
Inactive
Homestead Status
Active
Farmstead Status
Inactive
Lerta Amount
0
Lerta Expiration Year
0
Residential Data
Card 1
Style
RANCH
Basement
CRAWL
Year Built
1930
Exterior Wall
ALUMINUM/VINYL
Total Living Area
1266
Full Baths
1
Half Baths
0
Fuel Type
GAS
Heating
CENTRAL A/C
Heating System
FORCED AIR
Stories
1.0
Total Bedrooms
2
Total Family Rooms
0
Total Rooms
5
Fireplaces
1
Other Buildings & Yards
Description
Built
Width
Length
Area
FRAME OR CB DETACHED GARAGE
1940
14
18
252
Sales History
Sale Date
Type
Price
Book / Page
Other Info
2/21/2025
LAND & BUILDING
134000
2025 / 002724
SPECIAL WARRANTY DEED
4/23/1998
0
0556 / 0047
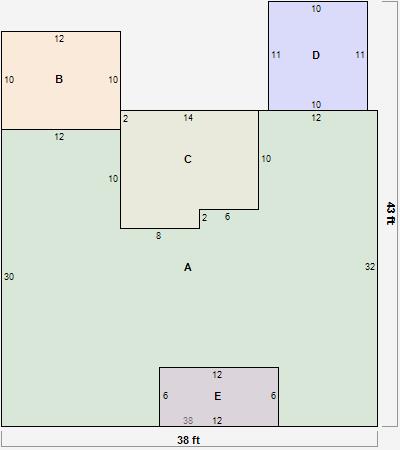
Parcel Sketches
Residential Card 1
A
MAIN
1036 square feet
B
1S FR ONE STORY FRAME
120 square feet
C
MA_PT CONC/MAS PATIO
156 square feet
D
FROVR FRAME OVERHANG
110 square feet
E
MA_PT CONC/MAS PATIO
72 square feet
Parcel Images
Please note:
this tab is for informational purposes only and may not show all delinquencies, see the Taxes tab for more accurate delinquent taxes due.